Această locuință individuală este concepută ca o reinterpretare contemporană a stilului clasic, îmbinând eleganța tradițională cu elemente moderne de compoziție și funcționalitate. Regimul de înălțime Parter + Etaj 1 și volumetria echilibrată conferă clădirii o prezență impunătoare și armonioasă, susținută de proporții bine controlate.
Parterul găzduiește zona de zi și funcțiunile auxiliare, organizate în jurul unui hol central generos, care asigură distribuția către windfang, baie, cameră tehnică, living, bucătărie, garaj și nodul vertical de circulație. Zona de zi se deschide către o terasă amplă, parțial încadrată de arcade, ce integrează o piscină poziționată central în formă de T, devenind punctul focal al întregii locuințe.
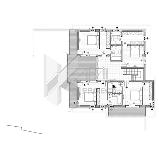
Etajul 1 este dedicat zonei de noapte și cuprinde patru dormitoare, fiecare cu dressing și baie proprie, precum și două balcoane ce completează relația cu exteriorul și oferă perspective variate asupra curții.
Arhitectura realizează un dialog între nou și vechi: fațada către stradă are o expresie modernă, marcată de goluri vitrate ample, iar fațada către curtea din spate este tratată într-o notă clasică, evidențiată prin ritmul arcadelor. Tencuiala albă unifică imaginea clădirii și îi accentuează caracterul elegant.
Cu o suprafață desfășurată totală de 405,78 mp și o suprafață utilă de 221,35 mp, locuința oferă spații generoase, bine iluminate natural și atent organizate. Acoperișul de tip șarpantă completează imaginea unei locuințe clasice reinterpretate într-o cheie contemporană.
Parter
Windfang – 4.32 mp
Nod vertical de circulație
Hol – 22.93 mp
Baie – 4.64 mp
Cameră tehnică – 7.41 mp
Living – 25.18 mp
Bucătărie – 25.18 mp
Garaj – 18.06 mp
Terasă – 49.64 mp
Piscină exterioară în formă de T
Etaj 1
Nod vertical de circulație
Hol – 18.36 mp
Dormitor – 16.05 mp
Dressing – 4.96 mp
Baie – 4.52 mp
Dormitor – 14.13 mp
Dressing – 8.30 mp
Baie – 4.05 mp
Dormitor matrimonial – 14.06 mp
Dressing – 6.36 mp
Baie – 4.64 mp
Dormitor matrimonial – 13.98 mp
Dressing – 5.08 mp
Baie – 4.67 mp
Balcon – 32.06 mp
Balcon – 9.68 mp












