Această locuință individuală este concepută într-un limbaj arhitectural modern, caracterizat prin volume ample, linii curate și o relație puternică între interior și spațiile exterioare acoperite. Organizarea exclusiv pe parter asigură un grad ridicat de confort, accesibilitate și o funcționare eficientă a tuturor spațiilor.
Locuința se remarcă prin deschiderea către terasele acoperite, care extind zona de locuire și creează spații ideale pentru relaxare și socializare. Camerele de odihnă sunt amplasate în zona din spate, pentru asigurarea liniștii și intimității, în timp ce spațiile destinate activităților comune, precum livingul și bucătăria, sunt concentrate către intrarea în locuință, favorizând interacțiunea și lumina naturală.
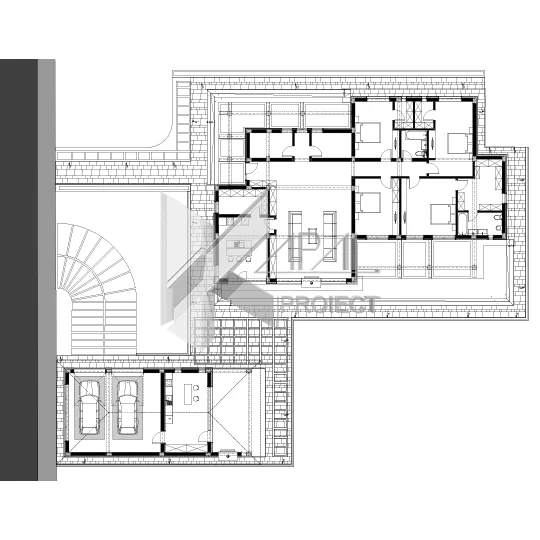
Ansamblul este completat de un corp dedicat garajului și bucătăriei de vară, care susține activitățile cotidiene și momentele petrecute în aer liber. Fațadele sunt tratate cu tencuială albă, placaje din piatră decorativă gri închis și placaje decorative maro, rezultând o imagine elegantă și contemporană. Datorită suprafețelor vitrate generoase, locuința beneficiază de o iluminare naturală bună pe tot parcursul zilei.
Cu o amprentă la sol de 334,93 mp, o suprafață desfășurată totală de 464,49 mp și o suprafață utilă de 279,79 mp, casa oferă spații generoase și bine echilibrate. Acoperișul de tip șarpantă completează imaginea arhitecturală și asigură o bună protecție climatică.
Parter
Hol – 2.97 mp
Hol – 2.70 mp
Cameră tehnică – 6.77 mp
Baie – 6.40 mp
Debara – 7.91 mp
Bucătărie – 19.95 mp
Living – 59.67 mp
Dormitor – 15.75 mp
Dormitor – 14.73 mp
Dressing – 3.12 mp
Dormitor – 19.56 mp
Baie – 4.51 mp
Dormitor – 19.67 mp
Dressing – 12.13 mp
Baie – 6.30 mp
Terasă acoperită – 67.98 mp
Bucătărie de vară – 21.40 mp
Terasă acoperită – 28.54 mp
Garaj – 45.99 mp











