ceastă clădire de locuințe colective este concepută într-un limbaj arhitectural modern, cu o volumetrie clară și expresivă, adaptată poziției de capăt de perspectivă și menită să devină un reper urban în contextul construit. Regimul de înălțime Parter + 3 Etaje generează o prezență echilibrată, iar jocul volumelor, retragerea ultimului nivel și ritmul balcoanelor contribuie la o imagine dinamică și contemporană.
Parterul este tratat ca bază funcțională a clădirii, fiind eliberat de funcțiuni de locuire și destinat în principal parcării, spațiilor tehnice și zonelor de depozitare, ceea ce permite o bună separare între zona publică și cea rezidențială. Incinta este delimitată către stradă printr-un sistem de grilaje metalice, care sugerează caracterul tehnic al bazei și asigură totodată intimitate.
Fațadele propun un contrast controlat între baza finisată în nuanțe mai închise și volumele superioare tratate în tonuri deschise, completate de placaje de tip Trespa alb și accente de piatră decorativă. Balcoanele sunt prezente pe toate cele patru fațade, iar retragerea etajului 3 permite obținerea unor spații exterioare mai generoase. Tâmplăria PVC gri închis și balustradele din sticlă securizată contribuie la coerența imaginii contemporane.
Clădirea are o lungime de 25,40 m și o lățime de 14,05 m, o suprafață construită de 286,06 mp, o suprafață desfășurată totală de 1.281,84 mp și o suprafață utilă de 648,93 mp. Acoperișul este de tip terasă necirculabilă, iar peste aceasta se propune un spațiu verde amenajat.
Parter
Două accese în casa scării (din stradă și din incintă)
Casă scară
Nod vertical de circulație
Lift
Spațiu tehnic
Boxă depozitare (biciclete)
Depozitare deșeuri
Acces auto în incintă
15 locuri de parcare
Spații verzi amenajate
Loc de joacă pentru copii
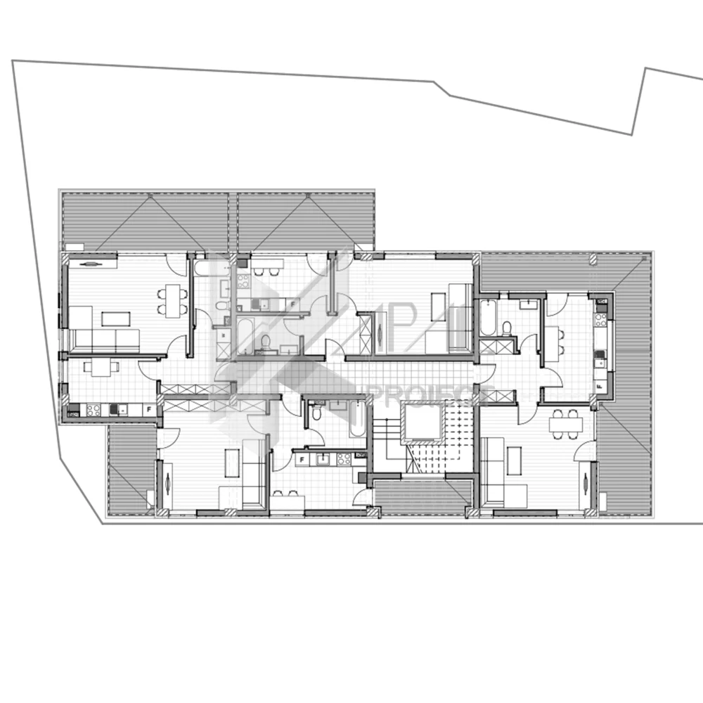
Etajul 1
Nod vertical de circulație
Lift
Hol
Apartament 1 – Garsonieră (39.43 mp)
Hol – 3.27 mp
Baie – 5.25 mp
Bucătărie – 10.17 mp (cu balcon 6.23 mp)
Living – 20.74 mp
Balcon – 7.14 mp
Apartament 2 – 2 camere (52.74 mp)
Hol – 7.16 mp
Bucătărie – 9.58 mp
Baie – 4.64 mp
Living – 18.97 mp
Dormitor – 12.38 mp
Balcon – 6.35 mp
Apartament 3 – 2 camere (53.72 mp)
Hol – 6.07 mp
Baie – 4.56 mp
Dormitor – 12.05 mp
Bucătărie – 11.58 mp
Living – 19.47 mp
Balcon – 6.67 mp
Apartament 4 – 2 camere (57.41 mp)
Hol – 10.58 mp
Living – 20.90 mp
Dormitor – 12.66 mp
Baie – 4.62 mp
Bucătărie – 8.65 mp
Balcon – 15.19 mp
Etajul 2
Nod vertical de circulație
Lift
Hol
Apartament 5 – Garsonieră (39.43 mp)
Hol – 3.27 mp
Baie – 5.25 mp
Bucătărie – 10.17 mp (cu balcon 6.23 mp)
Living – 20.74 mp
Balcon – 7.75 mp
Apartament 6 – 2 camere (52.74 mp)
Hol – 7.16 mp
Bucătărie – 9.58 mp
Baie – 4.64 mp
Living – 18.97 mp
Dormitor – 12.38 mp
Balcon – 6.35 mp
Apartament 7 – 2 camere (53.72 mp)
Hol – 6.07 mp
Baie – 4.56 mp
Dormitor – 12.05 mp
Bucătărie – 11.58 mp
Living – 19.47 mp
Balcon – 6.67 mp
Apartament 8 – 2 camere (57.41 mp)
Hol – 10.58 mp
Living – 20.90 mp
Dormitor – 12.66 mp
Baie – 4.62 mp
Bucătărie – 8.65 mp
Balcon – 15.19 mp
Etajul 3
Nod vertical de circulație
Lift
Hol
Apartament 9 – Garsonieră (39.22 mp)
Hol – 3.27 mp
Baie – 5.25 mp
Bucătărie – 10.17 mp (cu balcon 6.23 mp)
Living – 20.65 mp
Balcon – 7.75 mp
Apartament 10 – Garsonieră (42.27 mp)
Hol – 6.74 mp
Bucătărie – 9.58 mp
Baie – 4.50 mp
Living – 21.45 mp
Balcon – 18.85 mp
Apartament 11 – Garsonieră (39.95 mp)
Hol – 5.05 mp
Baie – 4.59 mp
Bucătărie – 8.99 mp
Living – 21.32 mp
Balcon – 16.12 mp
Apartament 12 – Garsonieră (44.13 mp)
Hol – 5.12 mp
Living – 22.52 mp (cu balcon 11.14 mp)
Baie – 4.51 mp
Bucătărie – 8.70 mp (cu balcon 19.85 mp)
Depozitare – 3.19 mp
Balcon – 15.19 mp
Terasă necirculabilă
Casă scară
Spațiu verde amenajat













