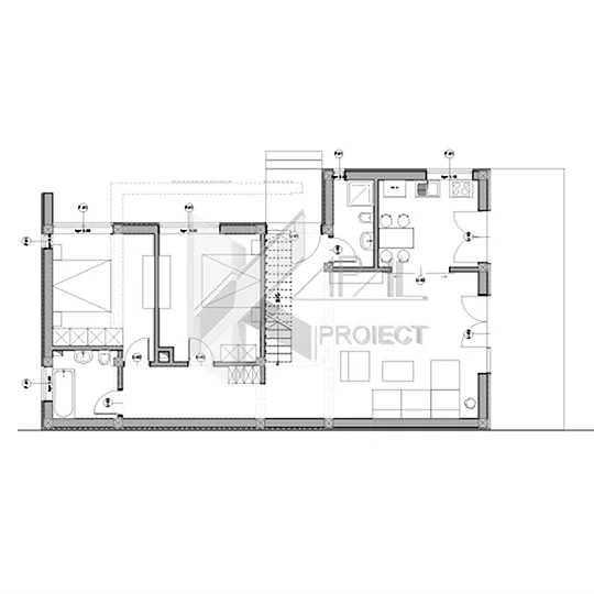
Parter:
Hol / acces – 17,95 mp: spațiu de distribuție generos, cu acces direct către zona de zi și dormitoarele parterului.
Nod vertical de circulație: scară compactă, poziționată central pentru fluxuri eficiente.
Baie 1 – 4,20 mp: ideală pentru zona de zi și oaspeți.
Bucătărie – 10,65 mp: proximitate optimă cu livingul, posibilitate de bar/insulă.
Living – 27,65 mp: piesa centrală a casei, deschidere către terasă; lumină naturală amplă.
Dormitor 1 – 15,09 mp: potrivit ca dormitor matrimonial la parter sau birou.
Baie 2 – 5,29 mp: deservire pentru dormitoarele parterului.
Dormitor 2 – 14,08 mp: cameră confortabilă pentru copil, oaspete sau hobby.
Terase – incluse în totalul de 23,46 mp, amplifică relația interior–exterior.
Etaj 1
Nod vertical de circulație: continuarea scării către un etaj intim, dedicat odihnei.
Hol – 1,22 mp: distribuție eficientă către spațiile etajului.
Dormitor 3 (Master) – 18,72 mp: spațiu generos, posibilă zonă dressing.
Baie 3 (Master) – 7,13 mp: baie proprie, configurabilă cu duș walk-in/cadă.












