Acest proiect propune o casă modernă P+1 compactă și eficientă, ideală pentru familii care își doresc un stil de viață contemporan pe un teren cu deschidere redusă. Cu o amprentă de 78,39 mp și 125,55 mp utili, locuința prioritizează confortul zilnic și o circulație fluentă între funcțiuni, păstrând în același timp costuri de întreținere predictibile.
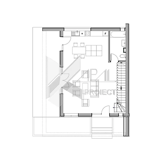
Parterul este conceput ca o zonă de zi luminoasă, cu living de 34,44 mp conectat vizual cu bucătăria open-space de 17,32 mp. Ambele spații se deschid spre o terasă de 28,59 mp, extinzând zona de socializare către exterior. O baie de 6,00 mp și scara amplasată central optimizează fluxurile și oferă acces facil către etaj.
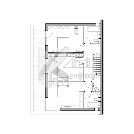
La etaj, zona de noapte asigură intimitate și liniște: două dormitoare de ~17 mp, deservite de o baie comună de 4,90 mp, și un dormitor matrimonial de 17,65 mp cu baie proprie de 4,68 mp. Suprafețele vitrate generoase, corelate cu o orientare cardinală optimă, aduc lumină naturală abundentă pe toată durata zilei.
Exteriorul îmbină cărămida aparentă cu tencuiala decorativă gri, oferind un contrast elegant și o identitate vizuală contemporană. Acoperișul tip terasă necirculabilă întregește estetica modernă și simplifică întreținerea. Dimensiunile clădirii – 10,05 m lungime și 7,80 m lățime – fac proiectul potrivit pentru loturi urbane, fără a compromite confortul interior.












