Această casă modernă este concepută ca o locuință familială cu regim de înălțime Parter + Etaj 1, având o organizare funcțională clară și o relație directă cu spațiul exterior prin terasa acoperită și foișorul amplasat în curte. Compartimentarea separă zona de zi de zona de noapte, oferind confort și intimitate.
Parterul este dedicat activităților zilnice și cuprinde bucătăria închisă, biroul și zona de living cu loc de luat masa, cu deschidere către terasa din spate. Etajul adăpostește trei dormitoare și grupul sanitar, dormitorul principal fiind completat de dressing.
Imaginea arhitecturală este definită de tencuiala decorativă albă, accentele de piatră decorativă gri pe colțuri și soclu, tâmplăria PVC antracit și balustradele din sticlă, rezultând un aspect contemporan și echilibrat.
Locuința are o suprafață desfășurată totală de 199,63 mp, o suprafață utilă de 126,48 mp și este acoperită cu șarpantă cu țiglă metalică gri.
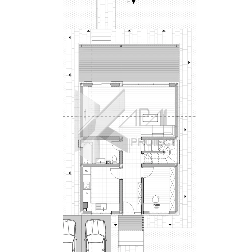
Parter
Hol – 8.85 mp
Bucătărie închisă – 10.44 mp
Birou – 8.75 mp
Nod vertical de circulație
Living + loc de luat masa – 29.20 mp
Terasă acoperită – 24.00 mp
Foișor (în curte) – 7.50 mp
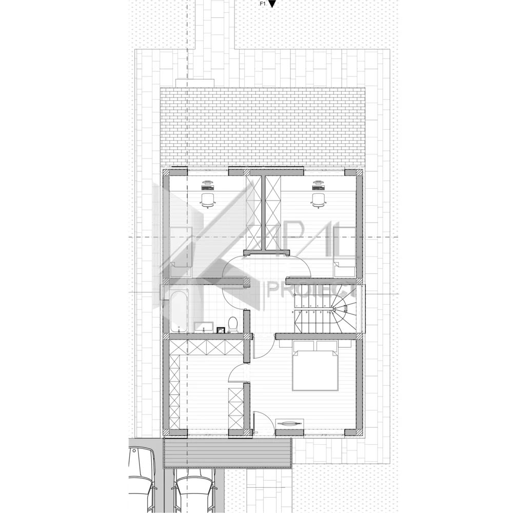
Etaj 1
Nod vertical de circulație
Hol – 5.00 mp
Dormitor – 15.06 mp
Dressing – 10.15 mp
Grup sanitar – 5.44 mp
Dormitor – ~13.00 mp
Dormitor – ~13.00 mp












