Această locuință modernă este concepută pentru o familie cu un copil, având dimensiuni reduse, o volumetrie simplă și o organizare funcțională eficientă pe regim de înălțime Parter + Etaj 1. Proiectul urmărește obținerea unui echilibru între confort, intimitate și economie de spațiu, printr-o compartimentare clară și bine optimizată.
Zona de zi este amplasată la parter și include spații bine delimitate pentru gătit, relaxare și socializare, precum și funcțiuni auxiliare care susțin buna funcționare a locuinței. Livingul beneficiază de acces direct către curte, favorizând extinderea activităților zilnice în exterior și o relație firească între interior și grădină.
Zona de noapte este amplasată la etaj și cuprinde dormitorul matrimonial cu baie proprie și balcon, dormitorul copilului, o baie comună și un dressing generos. Această organizare oferă un grad ridicat de confort și intimitate pentru fiecare membru al familiei.
Fațadele sunt tratate într-o cromatică echilibrată, cu tencuială decorativă albă și gri, iar accesul principal este evidențiat pe fațada principală. Suprafețele vitrate bine orientate asigură iluminare naturală și ventilare eficientă a tuturor încăperilor.
Locuința are o suprafață desfășurată totală de 181,96 mp, o suprafață utilă de 129,75 mp și este acoperită cu șarpantă cu învelitoare din țiglă ceramică gri.
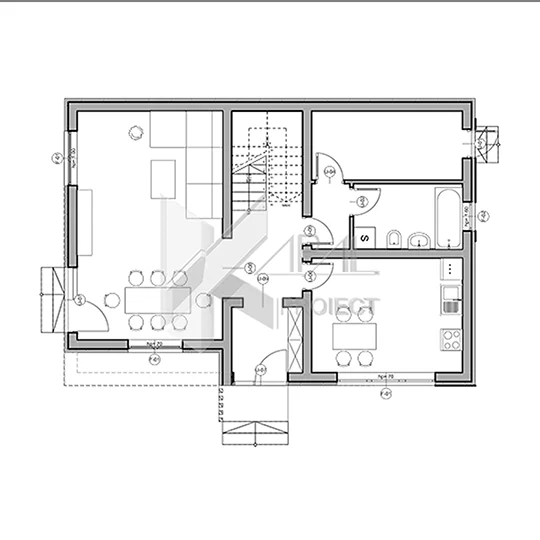
Parter
Windfang: 3,62 mp – tampon termic și zonă de tranziție curată.
Hol + nod vertical: 4,95 mp – distribuție clară către bucătărie și living.
Bucătărie închisă: 13,49 mp – spațiu dedicat gătitului, aerisire facilă.
Hol secundar: 2,00 mp – legătură către grupul sanitar și camera tehnică.
Baie: 5,40 mp – proximitate utilă pentru zona de zi.
Cameră tehnică: 7,99 mp – utilități și depozitare, întreținere simplificată.
Living: 25,61 mp – spațiu generos de socializare, acces separat către curte pentru extinderea activităților în aer liber.
Etaj 1
Hol + nod vertical: 4,41 mp – distribuție compactă și intuitivă.
Dormitor matrimonial: 20,08 mp – confort sporit și baie proprie de 9,24 mp.
Balcon matrimonial: 7,25 mp – loc pentru relaxare la exterior.
Baie secundară: 4,69 mp – deservă zona comună și dormitorul copilului.
Dormitor copil: 14,11 mp – lumină bună și proporții echilibrate.
Dressing: 13,91 mp – depozitare amplă, menține dormitoarele aerisite și ordonate.











