Parter
Nod vertical de circulație
Debara: 2,77 mp
Spațiu tehnic: 5,68 mp
Bucătărie: 16,70 mp
Living: 35,74 mp cu deschidere către terasă
Grup sanitar: 3,54 mp
Birou: 11,02 mp
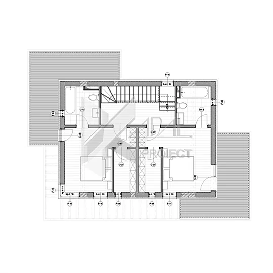
Etaj 1
Nod vertical de circulație + Hol: 7,13 mp
Dormitor 1: 14,59 mp + Baie: 5,28 mp + Dressing: 4,22 mp + Balcon: 18,22 mp
Dormitor 2: 14,76 mp + Baie: 5,31 mp + Dressing: 4,06 mp + Balcon: 14,16 mp












