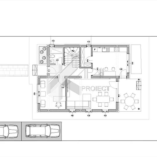
Parter
Hol + scară – 6,55 mp, nodul de acces și circulație verticală
Grup sanitar – 3,45 mp, poziționat convenabil pentru zona de zi
Birou – 12,48 mp, luminat natural, ideal pentru work-from-home
Bucătărie – 15,45 mp, cu spațiu de depozitare integrat (3,19 mp) pentru organizare eficientă
Living cu zonă de luat masa – 23,99 mp, deschidere către terasa acoperită (10,83 mp) și curtea din spate
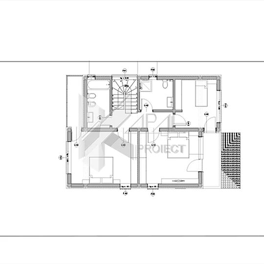
Etaj 1
Hol + scară – 6,08 mp, distribuție clară către zona de noapte
Dormitor matrimonial – 19,43 mp
Dormitor 2 – 17,16 mp
Dormitor 3 – 11,16 mp
Baie 1 – 6,09 mp
Baie 2 – 5,59 mp
Balcon – 5,81 mp, cu acces din două dormitoare, pentru ventilare și confort sporit












