Acest proiect este o casă modernă P+1E proiectată pentru confortul unei familii cu 2 copii, cu o suprafață utilă de 130,63 mp și o suprafață desfășurată de 205,89 mp. Volumul clădirii este glisat spre stradă, gest care marchează intrarea principală și o protejează prin balconul etajului 1. Către grădină, al doilea balcon este așezat strategic deasupra terasei pentru umbrire naturală și continuitate vizuală între interior și exterior.
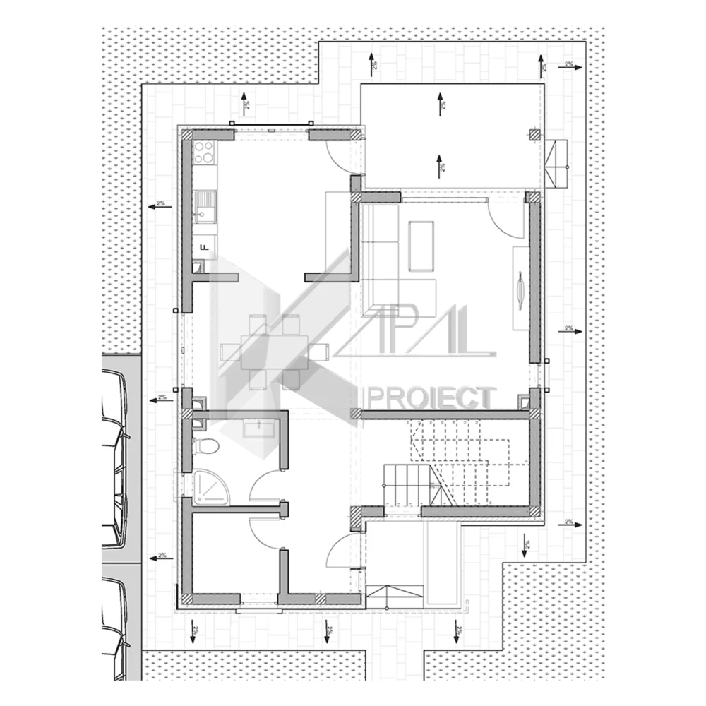
La parter, planimetria clară susține un stil de viață activ: un living generos cu loc de luat masa (32,97 mp) comunică eficient cu bucătăria (12,38 mp), în timp ce holul (8,70 mp), baia (4,31 mp) și spațiul tehnic (4,10 mp) rezolvă funcțiunile de zi cu zi. Terasa de 10,75 mp extinde zona de zi în aer liber pentru mic dejunuri, joacă sau seri relaxante.
La etaj, zona de noapte oferă intimitate și ordine: trei dormitoare bine dimensionate, două băi și un dressing dedicat dormitorului matrimonial. Două balcoane amplifică lumina naturală și ventilația, în timp ce nodul vertical asigură un flux de circulație firesc și sigur pentru copii.
Materialele propuse îmbină eleganța și durabilitatea: tencuială decorativă albă, piatră decorativă gri (nuanțe deschis/închis), tâmplărie PVC gri închis și balustrade metalice. Acoperișul tip șarpantă cu țiglă metalică completează imaginea contemporană și asigură protecție pe termen lung. Cu amprenta la sol de 86,56 mp și perimetrul etajului superior de 93,05 mp, K048 optimizează parcela, oferind în același timp 26,28 mp de balcoane și o terasă perfect integrată.
Parter
Hol – 8,70 mp
Spațiu tehnic – 4,10 mp
Baie – 4,31 mp
Nod vertical de circulație
Living + loc de luat masa – 32,97 mp
Bucătărie – 12,38 mp
Terasă – 10,75 mp (acoperită parțial de balconul etajului)
Etaj 1
Hol – 7,21 mp
Baie – 4,46 mp
Dormitor matrimonial – 16,08 mp + Dressing 4,92 mp + Baie 3,71 mp + Balcon 10,98 mp
Dormitor 2 – 15,17 mp
Dormitor 3 – 16,60 mp + Balcon 4,55 mp
Total balcoane: 26,28 mp












