Această casă modernă este concepută pentru amplasare pe malul lacului, valorificând panta naturală a terenului și deschiderea către peisaj. Regimul de înălțime Subsol + Parter + Etaj 1 permite organizarea zonei de zi la nivelul inferior, cu relație directă cu lacul, și amplasarea zonelor de dormit la nivelurile superioare.
Volumetria este articulată, generând terase generoase orientate spre lac și un dialog clar între fațada publică, către stradă, și cea deschisă către peisaj. Suprafețele vitrate ample, materialele în nuanțe deschise și accentele de piatră și lemn conferă locuinței un caracter contemporan și cald.
Clădirea are o suprafață desfășurată totală de 308,68 mp, o suprafață utilă de 224,05 mp și este acoperită cu terasă necirculabilă.
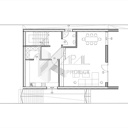
Subsol
Living + dining: 45,94 mp cu ieșire pe terasă 39,36 mp și relație directă cu lacul
Bucătărie închisă: 19,35 mp cu cămară 4,07 mp
Baie: 4,48 mp
Hol: 12,93 mp
Nod vertical de circulație (scară interioară)
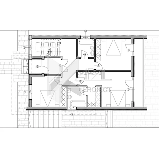
Parter
Windfang: 4,48 mp
Hol + nod vertical de circulație: 12,62 mp
Baie: 5,15 mp
Dormitor: 14,34 mp
Dormitor: 16,15 mp
Dormitor matrimonial + dressing: 24,35 mp
Baie matrimonială: 5,40 mp
Balcon spre lac: 8,61 mp (acces din două dormitoare, inclusiv matrimonial)
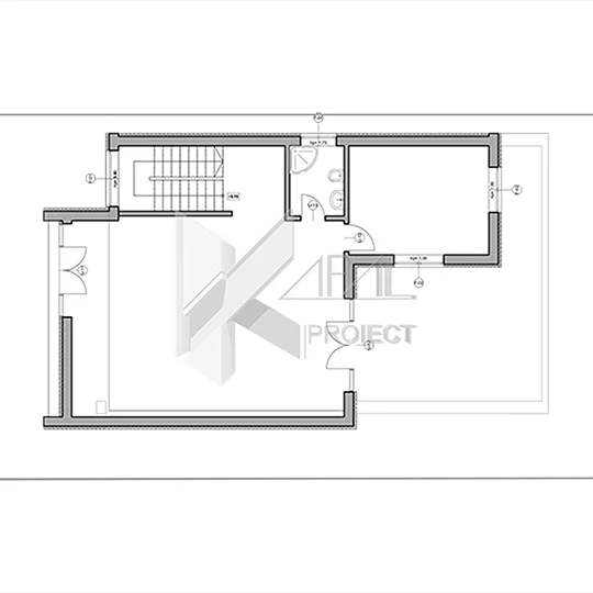
Etaj 1
Hol: 4,19 mp
Baie: 3,91 mp
Cameră flexibilă: 56,72 mp (studio/home-office/living secundar)
Spațiu tehnic: 15,75 mp
Terasă: 29,02 mp cu pergolă, orientată spre lac













