Se propune o locuință individuală modernă cu volumetrie compactă și o compartimentare extrem de eficientă, menită să maximizeze confortul fără pierderi de spațiu. Fațadele minimalist-contemporane adoptă o paletă alb-gri pusă în valoare de placajul TRESPA cu textură lemnoasă, conturând o imagine caldă și rafinată.
Planul este organizat pe S+P+1E, cu un nucleu vertical clar care conectează garajul de la subsol cu zona de zi la parter și zona de noapte la etaj. Terasele totalizează 106,72 mp, extinzând spațiul de locuit către exterior și creând punți naturale între interior și peisaj.
La interior, livingul cu dining (38,29 mp) se deschide către terase, iar bucătăria (9,55 mp) are debara dedicată și acces separat, sprijinind un flux domestic logic. La etaj, trei dormitoare sunt organizate pentru intimitate și depozitare optimă: două camere au dressinguri dedicate, iar dormitorul C integrează baie proprie.
Subsolul devine un atu major al casei: garajul (34,85 mp) și multiplele spații de depozitare susțin un stil de viață ordonat, păstrând parterul aerisit. Acoperișul tip terasă necirculabilă conferă o linie contemporană clară și permite un detaliu de cornișă curat.
Prin dimensiuni echilibrate (11,60 × 8,90 m) și un raport excelent între suprafețe, K087 oferă o experiență rezidențială modernă, ușor de întreținut, cu finisaje premium și o identitate arhitecturală matură.
Subsol
Acces auto prin rampă către garajul de 34,85 mp
Depozitări: 15,06 mp + 12,54 mp + 5,65 mp + 1,74 mp (patru spații separate, pentru echipamente, sezonier, arhivă)
Hol: 2,69 mp
Nod vertical de circulație (scară) cu legătură directă spre parter
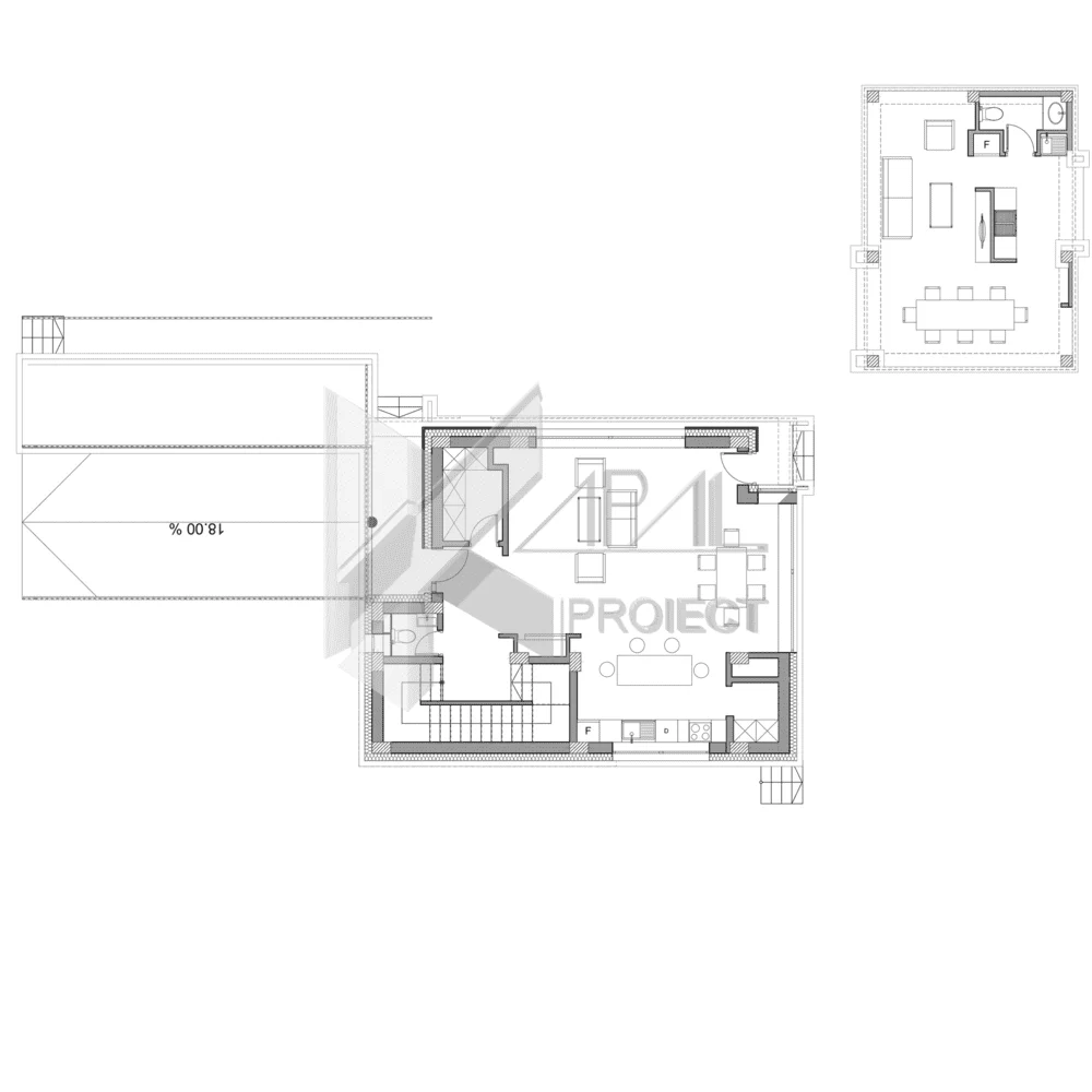
Parter
Zonă de acces: 7,36 mp | Hol: 7,57 mp
Depozitare: 3,76 mp (garderobă/household)
Grup sanitar: 1,41 mp
Living + Dining: 38,29 mp (open-space, acces spre terase)
Bucătărie: 9,55 mp + debara 2,08 mp + acces 1,47 mp
Foișor exterior: 37,59 mp (spațiu acoperit pentru dining/relaxare)
Etaj 1
Hol: 5,90 mp | Depozitare: 1,64 mp
Baie comună: 4,41 mp
Dormitor A: 15,18 mp
Dormitor B: 13,19 mp + dressing 5,79 mp
Dormitor C (matrimonial): 14,23 mp + dressing 4,42 mp + baie proprie 6,24 mp













