Locuință unifamilială modernă, S+P+1E, concepută în jurul ideii de viață fluidă între interior și exterior. Terasele generoase înconjoară volumul și extind funcțional zona de zi, oferind spații dedicate pentru relaxare, dining în aer liber și o bucătărie de vară sub o terasă parțial acoperită.
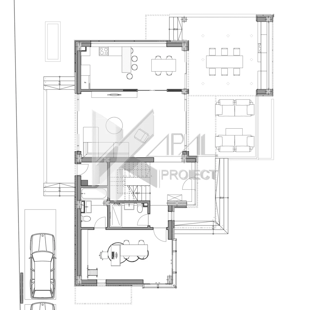
La parter, planul deschis ordonează relația dintre living (30,73 mp) și bucătărie (18,64 mp), ambele orientate spre terasă, pentru lumină naturală abundentă și flux funcțional excelent în zona de zi. Un birou (18,95 mp) cu baie proprie (4,28 mp) permite folosirea flexibilă ca home-office sau cameră de oaspeți. Spațiile tehnice sunt separate, asigurând mentenanță facilă și discreție.
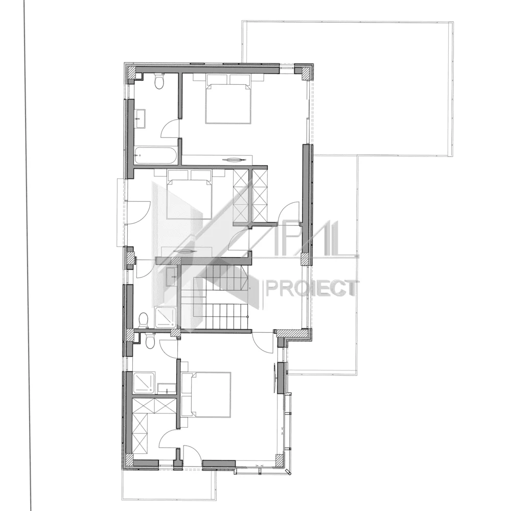
Zona de noapte este concentrată la etaj, cu trei dormitoare bine proporționate, două băi en-suite, un dressing și o terasă spectaculoasă (49,34 mp) + balcon, oferind atât intimitate, cât și ieșiri directe în exterior. Subsolul găzduiește o cameră tehnică de 47,85 mp și un grup sanitar, separând inteligent spațiile de utilități de zona de locuit.
Arhitectural, fațadele propun un joc de panouri Trespa în nuanțe gri deschis – gri – alb, care pun în valoare liniile moderne ale construcției. Acoperișul tip șarpantă cu țiglă gri completează imaginea, oferind durabilitate și o integrare elegantă în contextul urban sau periurban.
Date esențiale: amprentă la sol 149,53 mp, suprafață desfășurată totală 433,82 mp (din care 167,24 mp terase + spații tehnice), suprafață utilă 231,63 mp, dimensiuni maxime 16,30 × 8,10 m. Proiectul optimizează iluminarea și ventilarea prin goluri atent dimensionate și orientare cardinală bine calibrată.













