Această casă cu nuanțe rustice este concepută ca locuință de vacanță, amplasată într-un cadru natural pe malul lacului, cu regim de înălțime Parter + Mansardă. Arhitectura îmbină limbajul modern cu materiale naturale precum piatra, lemnul și cărămida, rezultând o imagine caldă și autentică.
Locuința se deschide către peisaj prin terase generoase la ambele niveluri, iar pergola din lemn de la parter accentuează relația cu exteriorul. Compartimentarea este gândită pentru a oferi spații ample de relaxare, zone de dormit confortabile și circulații clare.
Clădirea are o suprafață desfășurată totală de 372,72 mp, o suprafață utilă de 228,04 mp și este acoperită cu șarpantă cu învelitoare din țiglă maro.
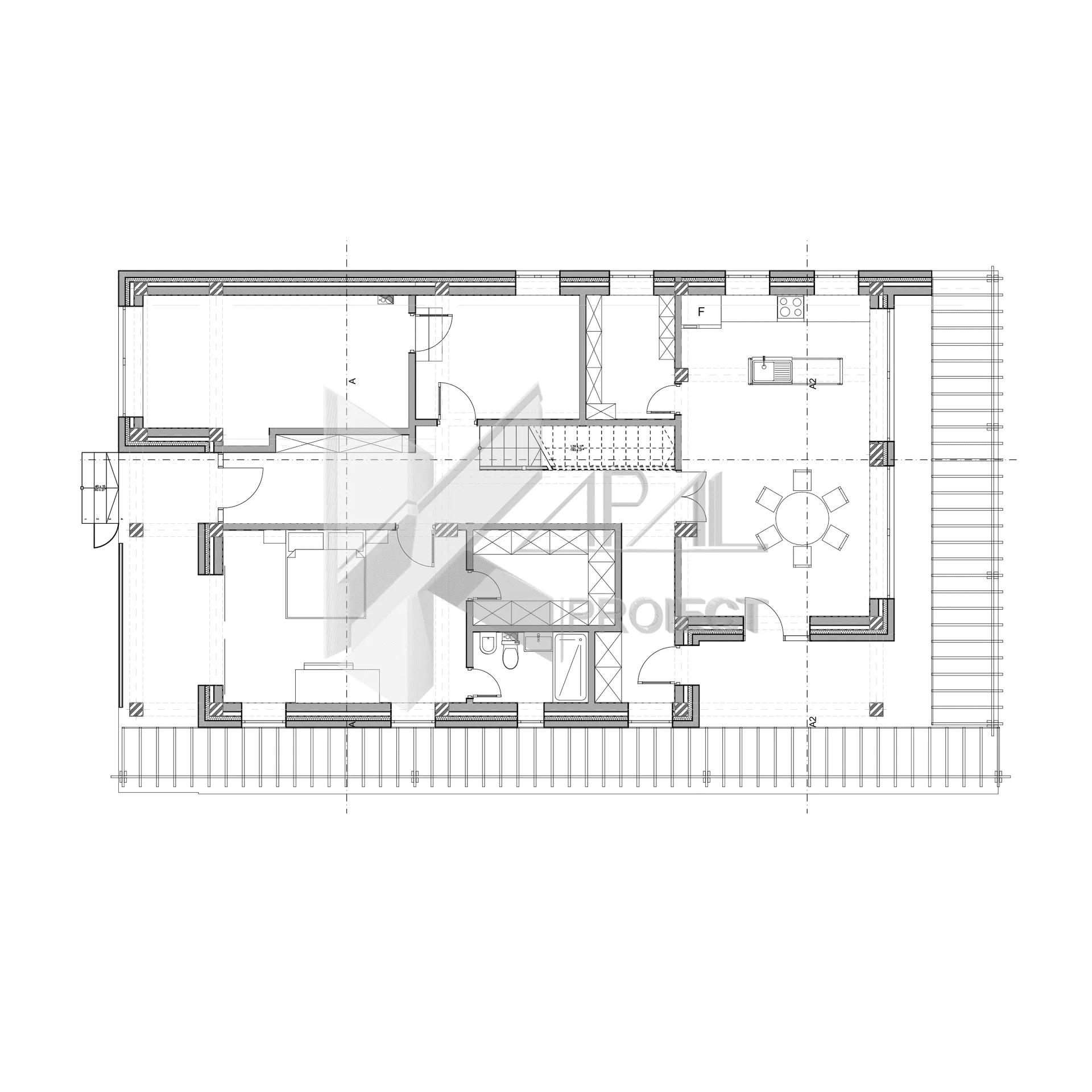
Parter
Terasă acces – 2.88 mp
Terasă principală – 71.81 mp
Hol – 22.17 mp
Spațiu tehnic – 10.32 mp
Scară către mansardă
Dormitor – 18.51 mp
Dormitor – 21.28 mp
Dressing – 6.88 mp
Baie – 4.13 mp
Bucătărie – 30.66 mp
Debara – 5.58 mp
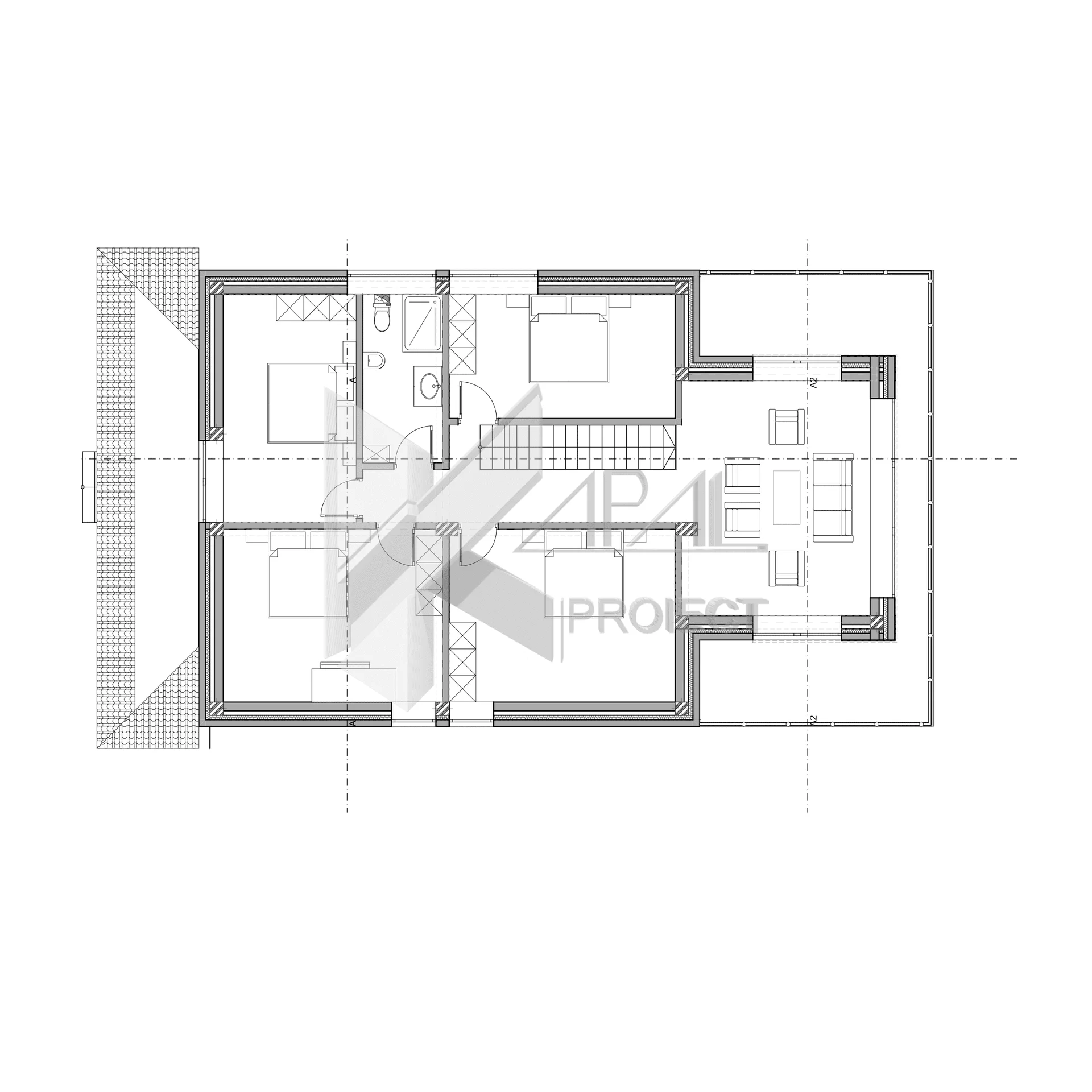
Mansardă
Hol – 10.15 mp
Baie – 6.84 mp
Living – 22.42 mp
Terasă – 25.75 mp
Dormitor – 14.28 mp
Dormitor – ~19 mp
Dormitor – ~20 mp
Dormitor – 15.45 mp
Balcon – 8.84 mp












