Acest proiect propune o arhitectură modernă, compactă și elegantă, gândită pentru un stil de viață actual. Volumetria clară și materialitatea atent dozată — piatră naturală în nuanțe calde/reci, placări Trespa culoare mahon, balustrade din sticlă securizată și tâmplărie PVC antracit — conferă o imagine contemporană coerentă și durabilă.
Planul funcțional maximizează 220,59 mp utili, cu zone de zi ample și flux logic între interior și exterior. Livingul cu dining (35,90 mp) se deschide către terasa acoperită (30,68 mp), completată de bucătăria de vară (3,42 mp) și un grup sanitar de serviciu (2,08 mp) accesibil din curte — perfect pentru socializare în aer liber. Bucătăria închisă (16,67 mp) oferă confort acustic și olfactiv, iar garajul (25,52 mp) integrează locuința cu zona de acces auto.
La etaj, trei dormitoare asigură intimitate și spațiu de depozitare generos, cu masterul beneficiind de dressing dedicat (8,05 mp), baie proprie (4,60 mp) și balcon (4,51 mp). Iluminarea naturală este potențată de suprafețe vitrate bine orientate, iar acoperișul tip șarpantă cu tablă fălțuită garantează durabilitate și întreținere eficientă.
Funcțional, locuința include subsol tehnic cu acces prin chepeng, ideal pentru echipamente și mentenanță. Întregul ansamblu livrează un echilibru între estetică modernă, eficiență a spațiilor și confortul familiei, într-un pachet „mic și cochet” dar complet.
Subsol
Spațiu tehnic cu acces prin chepeng – zonă dedicată echipamentelor și mentenanței, fără impact în spațiul util de la parter.
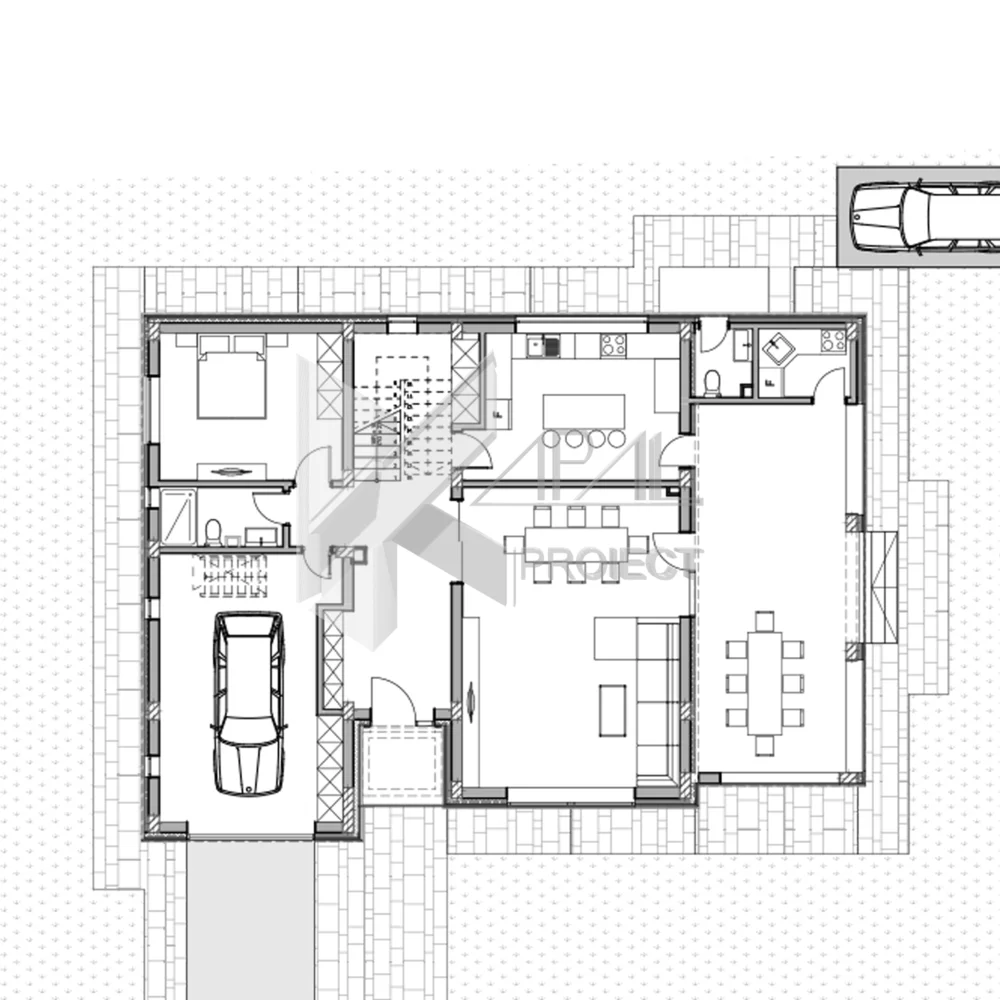
Parter
Hol + spațiu depozitare – 20,46 mp
Garaj – 25,52 mp (acces direct spre hol)
Living + loc de luat masa – 35,90 mp (deschidere către terasa acoperită)
Bucătărie închisă – 16,67 mp (circulație scurtă spre dining/terasă)
Nod vertical de circulație
Baie – 3,97 mp
Dormitor – 14,84 mp (ideal pentru oaspeți/birou)
Terasa acoperită – 30,68 mp
Bucătărie de vară – 3,42 mp
Grup sanitar de serviciu – 2,08 mp (acces din curte)
Etaj 1
Nod vertical de circulație + hol – 6,97 mp
Dormitor – 16,32 mp
Baie – 5,13 mp (baie comună)
Dormitor – 14,83 mp + dressing 6,02 mp
Dormitor matrimonial – 22,08 mp + baie 4,60 mp + dressing 8,05 mp + balcon 4,51 mp













