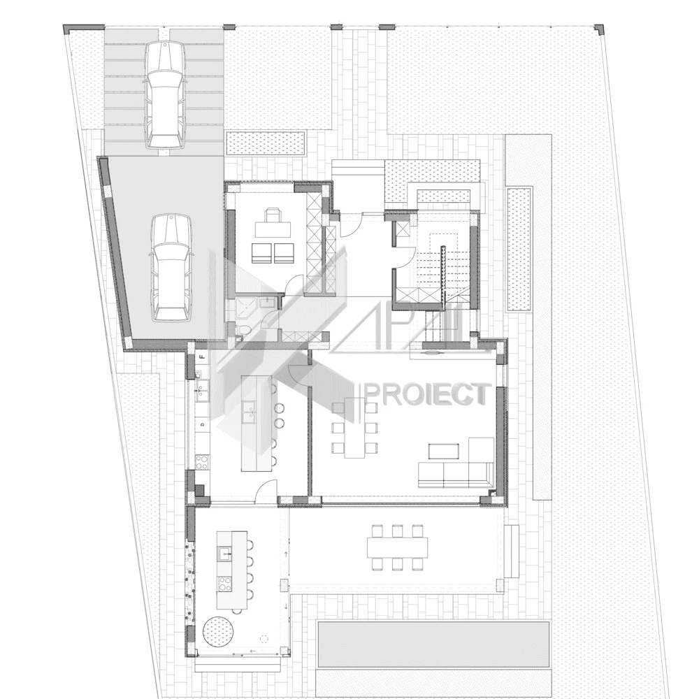
Locuinta propusa este o casa moderna, dezvoltata pe parter si un etaj, caracterizata printr-un joc de volume care genereaza terase generoase si un loc de parcare acoperit. Arhitectura imbina armonios zonele publice si private, cu deschideri ample si spatii vitrate generoase. La parter, zona de zi este organizata functional si comunica direct cu terasa acoperita, partial inchisa cu sticla, creand o relatie fluida intre interior si exterior. Etajul este destinat zonei de noapte, cu dormitoare bine proportionate, balcoane si o terasa ampla. Volumetria este accentuata prin alternanta de finisaje din fibrociment in nuante de gri si tencuieli decorative, rezultand o expresie contemporana, echilibrata. Acoperisul este de tip terasa necirculabila, completand caracterul modern al locuintei.












