Această casă modernă este concepută ca o locuință cuplată, cu spațiu comercial la nivelul parterului și acces separat pentru zona rezidențială. Regimul de înălțime Parter + Etaj 1 asigură separarea clară între zona publică, zona de zi și zona de noapte.
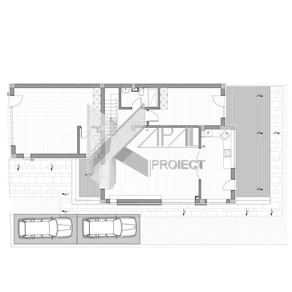
Parterul include spațiul comercial cu acces din stradă, iar zona locuirii cuprinde livingul, bucătăria închisă, un dormitor și spațiile sanitare, cu deschidere către terasă. Etajul este dedicat zonei de noapte și cuprinde trei dormitoare, fiecare cu baie proprie și acces la balcon.
Fațada este definită de vitraje ample și finisaje în nuanțe deschise, completate de placaje tip Trespa, riflaje din lemn și profile metalice, care diferențiază zona publică de cea privată. Clădirea are o suprafață desfășurată totală de 329,06 mp și este acoperită cu șarpantă cu țiglă ceramică maro.
Parter
Spațiu comercial – 31.83 mp
Grup sanitar – 3.38 mp
Living – 41.73 mp
Nod vertical de circulație
Hol – 2.86 mp
Baie – 4.41 mp
Dormitor – 16.23 mp
Bucătărie închisă – 13.14 mp
Terasă – 26.01 mp
Etaj 1
Hol – 7.56 mp
Dressing – 10.78 mp
Dormitor matrimonial
Dormitor – 19.68 mp
Dressing – 9.14 mp
Baie – 5.85 mp
Balcon – 6.40 mp
Dormitor 2
Dormitor – 17.11 mp
Baie – 4.22 mp
Balcon comun
Dormitor 3
Dormitor – 17.93 mp
Baie – 3.85 mp
Balcon – 20.61 mp












