Această casă modernă, cu formă dreptunghiulară, este concepută ca o locuință simplă, dar cu o prezență impunătoare, datorată proporțiilor alungite și organizării clare a volumelor. Regimul de înălțime Subsol + Parter + Mansardă permite o separare eficientă a funcțiunilor și o utilizare coerentă a fiecărui nivel.
Subsolul este destinat exclusiv funcțiunilor tehnice și depozitării, contribuind la eliberarea spațiilor principale de la nivelurile superioare. Parterul este organizat cu separarea zonei de zi de zona de noapte, oferind confort și intimitate, iar mansarda adăpostește zona de noapte suplimentară, destinată membrilor familiei sau oaspeților.
Locuința beneficiază de încăperi bine iluminate și ventilate natural, datorită suprafețelor vitrate bine orientate. Finisajele propuse, în nuanțe de alb și gri, susțin caracterul contemporan al construcției și pun în valoare simplitatea volumetriei.
Clădirea are o suprafață desfășurată totală de 312,74 mp, o suprafață utilă de 222,62 mp și este acoperită cu șarpantă cu învelitoare din țiglă ceramică gri.
Subsol
Hol – 5,39 mp, cu nod vertical de circulație (acces comod între niveluri)
Două spații tehnice – total 35,68 mp (echipamente, depozitare, atelier/hobby)
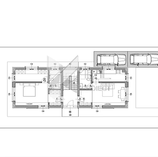
Parter
Hol intrare – 5,12 mp, cu nod vertical de circulație
Zona de zi:
Living – 20,41 mp (spațiu central, orientat către lumină naturală)
Bucătărie închisă – 8,62 mp (separare olfactivă, eficiență în lucru)
Baie – 4,85 mp (acces facil pentru oaspeți și familie)
Zona de noapte la parter:
Hol – 4,27 mp (buffer de intimitate)
Dormitor – 16,17 mp (posibil matrimonial)
Baie – 4,85 mp (confort zilnic)
Dressing – 8,62 mp (depozitare generoasă, organizare eficientă)
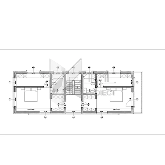
Mansarda
Hol – 5,12 mp, cu nod vertical de circulație
Două dormitoare – fiecare ~16,17 mp (luminoase, bine ventilate)
Hol secundar – 4,27 mp (distribuție către anexele nivelului)
Baie – 4,85 mp (servire zona de noapte)
Dressing – 8,62 mp (spațiu de depozitare la nivel)
Balcon – 6,74 mp (atașat unuia dintre dormitoare; extensie către exterior)











