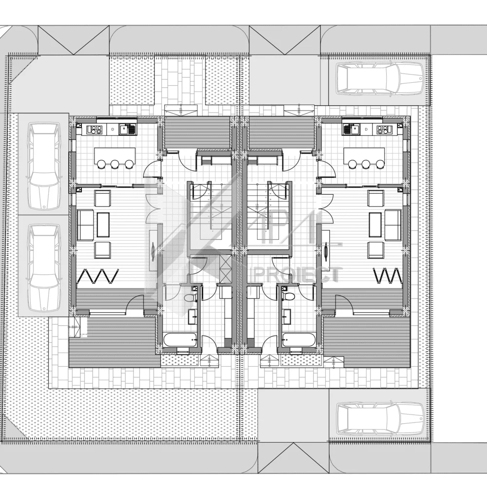
Proiectul propune două locuințe cuplate, identice și dispuse în oglindă, gândite pentru familii care apreciază un design modern, luminos și o compartimentare eficientă. Volumetria curată este pusă în valoare de tencuiala albă și accentele antracit care conturează logiile, în timp ce tâmplăria PVC gri închis și balustradele din sticlă adaugă un caracter contemporan, elegant.
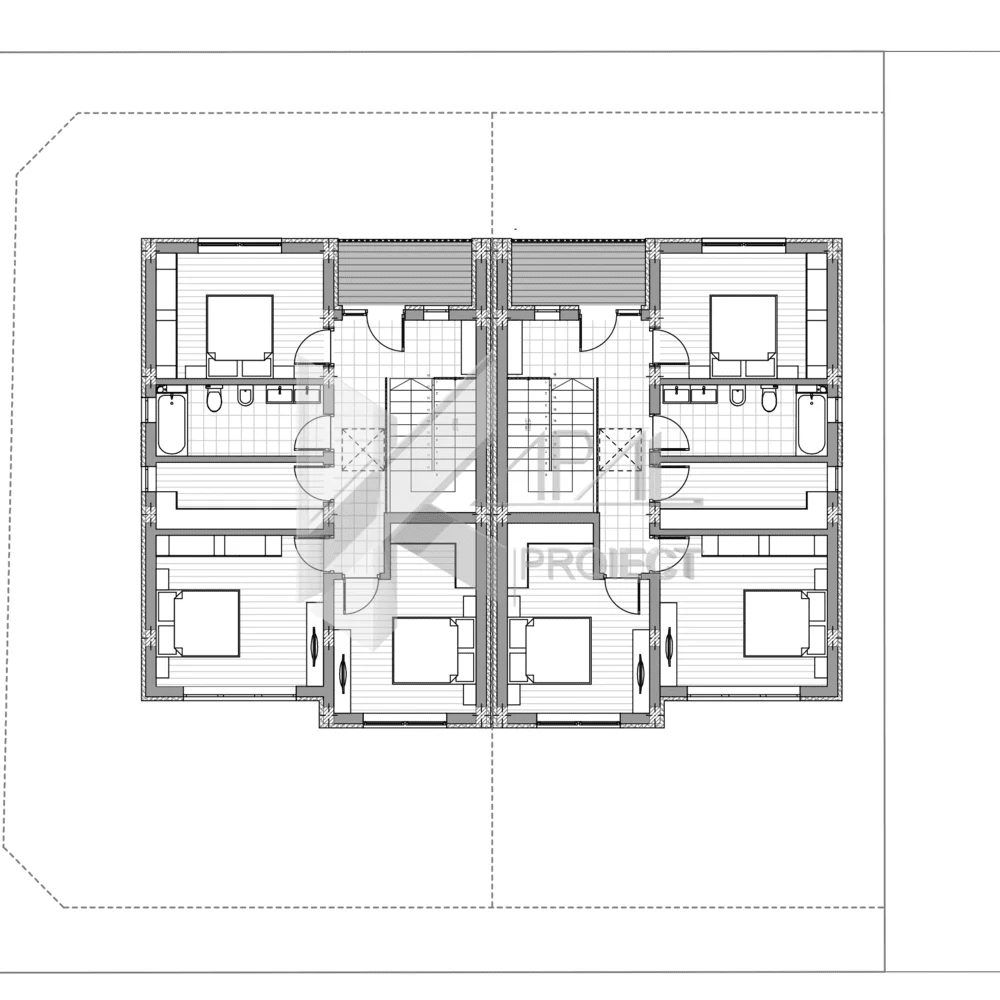
Cu S+P+1E, fiecare unitate delimitează clar zona de zi la parter de zona de noapte la etaj, iar subsolul tehnic asigură infrastructura necesară pentru instalații și depozitări. Terasa acoperită orientată către zona privată și balcoanele generoase extind confortul interior către exterior, oferind spații de relaxare și socializare.
Din punct de vedere al eficienței, soluțiile de circulație sunt compacte și intuitive, iar dispunerea în oglindă permite o execuție facilă, costuri optimizate și un front stradal coerent. Acoperișul tip șarpantă cu țiglă metalică gri asigură durabilitate și întreținere redusă, completând imaginea arhitecturală contemporană.













