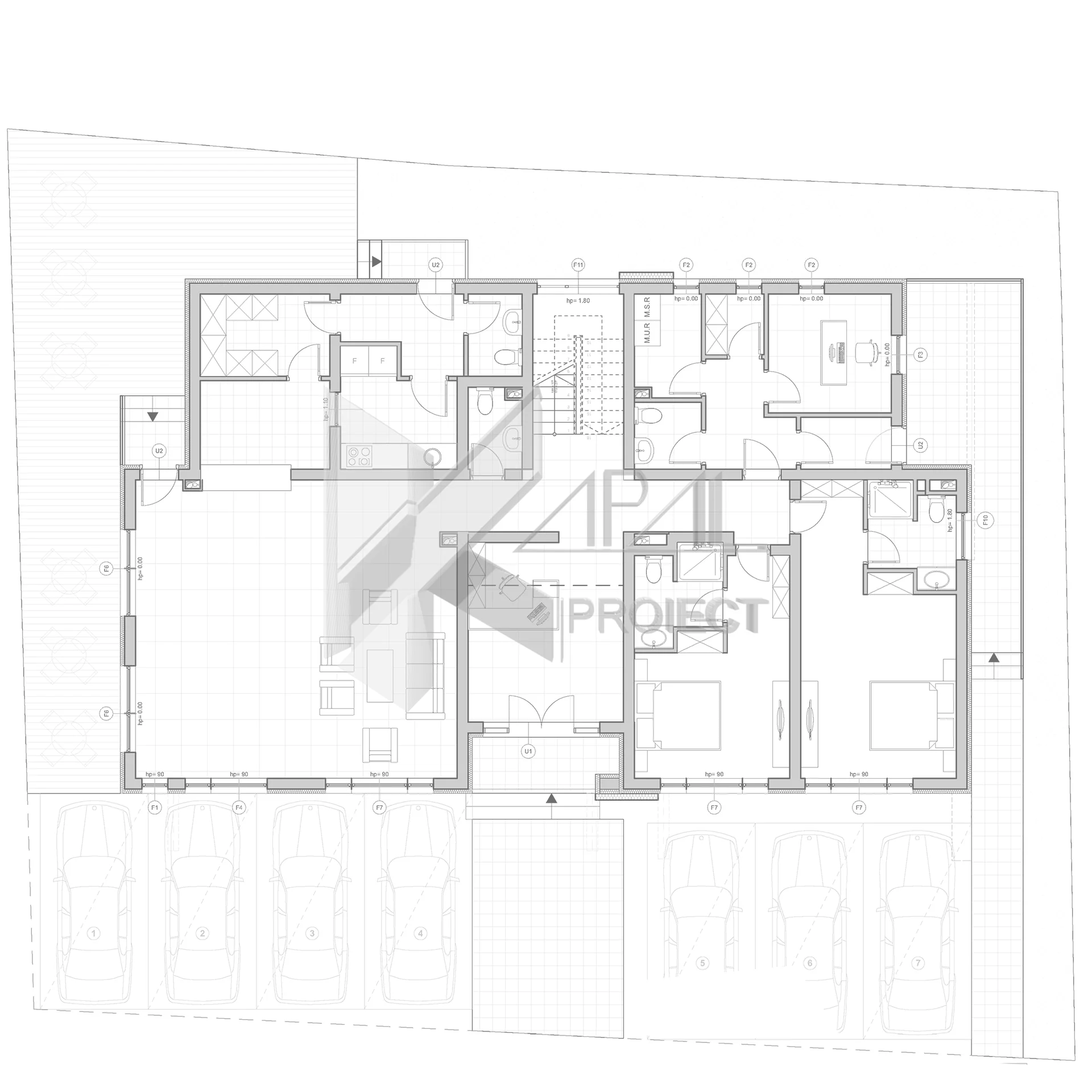
Parter
Acces principal cu hol și nod vertical de circulație (scară).
Zonă de zi: living generos, bar cu bucătărie, cămară, grup sanitar, deschidere către terasă.
Zonă de noapte: 2 dormitoare, fiecare cu baie proprie, orientate spre zona mai intimă a curții/terasei.
Birou cu acces separat (de pe o terasă exterioară): hol, grup sanitar, spații tehnice, birou – ideal pentru lucru în liniște sau recepția colaboratorilor fără a perturba zona de locuire.
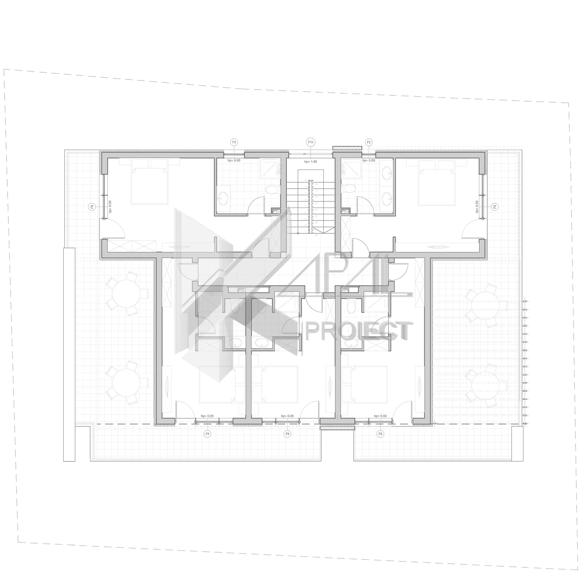
Etaj 1
Hol cu nod vertical (scară) + 4 terase perimetral distribuite.
7 dormitoare, fiecare cu baie proprie.
Organizarea radială permite intimitate, iluminare naturală și acces facil la terase.
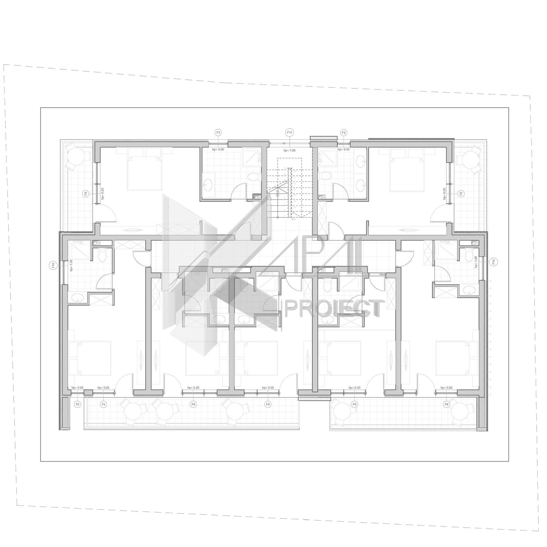
Etaj 2
Hol cu nod vertical + 4 terase.
7 dormitoare, fiecare cu baie proprie.
Repetarea tipologiei optimizează mentenanța și circulațiile, menținând standardele de confort.
Etaj 3 retras
Hol cu nod vertical.
5 dormitoare, fiecare cu baie proprie.
2 terase spațioase, cu caracter panoramic, gândite pentru relaxare și evenimente private.














