O locuință modernă cu Subsol + Parter + Etaj 1, concepută pentru familii care apreciază spațiile ample, lumina naturală și o estetică minimalistă, cu gesturi volumetrice care atrag privirea. Dinamica volumelor și fațadele puternic vitrate definesc un exterior contemporan, în care tâmplăria PVC gri antracit și balustradele din sticlă securizată & laminată pun în scenă o arhitectură curată, elegantă.
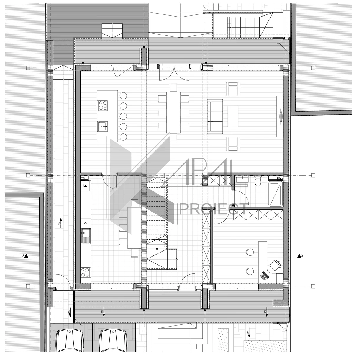
La parter, zona de zi se deschide într-un living de 70,47 mp cu loc de luat masa, conectat fluid la bucătăria de 22,21 mp și la două terase (18,45 mp și 46,32 mp), creând o tranziție firească între interior și grădină. Biroul pentru profesiuni liberale (17,63 mp) permite lucru de acasă în condiții profesionale, separat de zona de zi. Holul central integrează nodul vertical, iar baia de la parter (5,01 mp) deservește vizitatorii și spațiile de zi.
Etajul este gândit ca zonă de noapte complet privată, cu 3 dormitoare, fiecare cu baie proprie și balcon. Dormitorul matrimonial devine un adevărat apartament privat: dressing de 24,15 mp (un “must-have” pentru pasionații de organizare), baie de 12,82 mp și balcon — un set care transformă rutina zilnică în confort premium. Dormitoarele A și B (24,51 mp și 20,92 mp) au băi dedicate (6,75 mp și 6,60 mp) și balcoane (4,17 mp și 6,27 mp), asigurând intimitate pentru fiecare membru al familiei.
Subsolul adăpostește zona tehnică a casei, împărțită în 6 spații cu suprafețe generoase (51,22 mp; 28,48 mp; 27,88 mp; 17,73 mp; 11,72 mp; 8,78 mp), plus hol de 21,54 mp, pregătită pentru depozitări, echipamente, hobby sau spații auxiliare în funcție de nevoi.
Cromatic, proiectul mizează pe alb – lemn – antracit, punând în evidență linia modernă și textura materialelor. În ansamblu, K139 este o casă cu suprafețe generoase (433,76 mp utili) și scenarii de locuire flexibile, ideală pentru o familie numeroasă sau pentru gazde care adoră socializarea.













