Această locuință individuală este concepută ca un ansamblu rezidențial cu expresie modernă și influențe mediteraneene, caracterizat prin volumetrie echilibrată, spații generoase și o relație puternică între interior și exterior. Regimul de înălțime Subsol + Parter + Etaj 1, completat de piscină exterioară, terase ample și corpuri anexe, generează o compoziție coerentă, cu un caracter spectaculos și un grad ridicat de confort.
Clădirea principală se dezvoltă în jurul unei terase centrale, care devine elementul organizator al întregului ansamblu, iar corpurile secundare — anexa, foișorul și garajul — se află într-o relație directă cu aceasta. Imaginea arhitecturală este definită de simplitatea volumelor, fațadele albe, suprafețele vitrate ample și acoperișurile tip terasă circulabilă, rezultând un aspect contemporan, adaptat contextului litoral.
Zona de zi este amplasată la parter și beneficiază de deschideri largi către terasele estice și vestice, precum și către piscină, favorizând lumina naturală și continuitatea spațiului interior cu exteriorul. Zona de noapte este amplasată la etaj, unde cele patru dormitoare sunt organizate eficient și conectate printr-un balcon comun, oferind intimitate și confort.
Materialele utilizate — tencuială albă, placaje din piatră maro și tonuri cromatice inspirate din paleta litoralului — susțin caracterul elegant și relaxat al ansamblului. Suprafața desfășurată totală este de 998,41 mp, din care 427,91 mp reprezintă balcoane și subsol, iar suprafața utilă este de 506,71 mp. Acoperișul este de tip terasă circulabilă.
Subsol
Spații tehnice și funcțiuni auxiliare
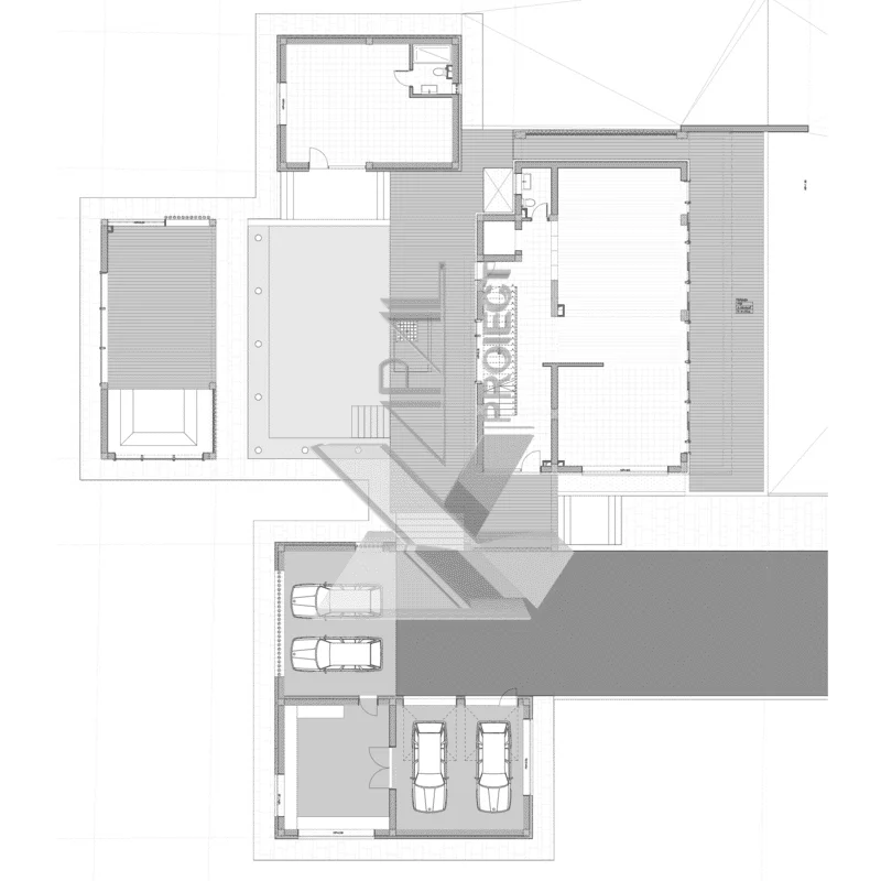
Parter
Vestibul – 7.58 mp
Hol – 18.22 mp
Lift
Grup sanitar – 3.16 mp
Living + dining – 53.19 mp
Bucătărie – 27.64 mp
Terasă estică – 63.46 mp
Terasă vestică – 95.14 mp
Piscină exterioară – 57.00 mp
Etaj 1
Nod vertical de circulație
Lift
Hol – 19.46 mp
Dormitor 1
Dormitor matrimonial – 18.37 mp
Dressing – 7.56 mp
Baie – 7.33 mp
Dormitor 2
Dormitor – 14.16 mp
Baie – 3.61 mp
Dormitor 3
Dormitor – 13.99 mp
Baie – 3.85 mp
Dormitor 4
Dormitor matrimonial – 15.58 mp
Dressing – 6.28 mp
Baie – 5.69 mp
Balcon comun – 20.93 mp
Corpuri anexe
Anexă (Corp C2)
Anexă parter – 38.28 mp
Grup sanitar – 4.18 mp
Foișor (Corp C3)
Foișor – 51.26 mp
Garaj și atelier (Corp C4)
Garaj (4 locuri) – 35.10 mp si 35.97mp
Atelier – 28.96 mp













