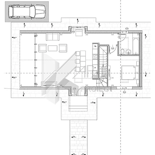
Parter
Living + Bucătărie open-space: 44,06 mp – nucleul casei, cu înălțime sporită parțial și deschidere către terasă; ideal pentru lumină naturală și flux interior-exterior.
Terasă: 10,50 mp – spațiu pentru dining în aer liber/relaxare.
Dormitor: 13,77 mp – poziționat pentru acces facil, potrivit ca master sau cameră pentru oaspeți/birou.
Baie: 5,59 mp – completă, deservind atât zona de zi cât și dormitorul.
Hol: 3,55 mp – distribuție clară spre zona de zi, dormitor și scară.
Scară de acces la mansardă – amplasată eficient în zona de zi.
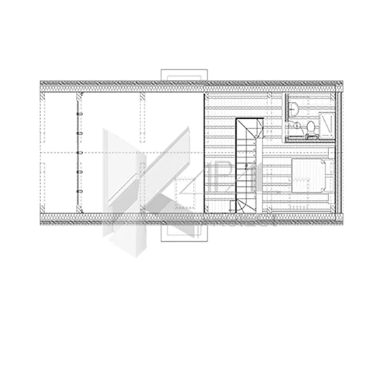
Mansarda
Dormitor: 24,17 mp – spațiu generos, intim; configurabil cu dressing sau colț de birou.
Baie: 4,38 mp – dedicată nivelului superior, pentru independență funcțională.
Spațiu deschis către living (supantă) – creează dublă înălțime și perspectivă vizuală spre zona de zi, accentuând caracterul modern al casei.












