Această locuință modernă este concepută pentru o familie cu doi sau trei copii, având regim de înălțime Parter + Etaj 1 și o organizare funcțională clară. Volumetria echilibrată și forma în plan a clădirii generează spații exterioare generoase, respectiv o terasă amplă la parter și un balcon spațios la etaj.
Parterul este dedicat zonei de zi și include spații deschise și luminoase pentru relaxare și gătit, precum și un dormitor de oaspeți. Etajul adăpostește zona de noapte, cu trei dormitoare și spații de depozitare asociate.
Locuința beneficiază de suprafețe vitrate generoase și o orientare favorabilă, asigurând iluminare naturală și ventilare eficientă. Finisajele combină tencuiala decorativă albă cu placaje din piatră maro deschis și panouri tip Trespa în nuanțe de maro, iar jardinierele integrate la parter și etaj adaugă un plus de verdeață și identitate fațadelor.
Clădirea are o suprafață desfășurată totală de 244,28 mp, o suprafață utilă de 98,18 mp și este acoperită cu șarpantă cu învelitoare din țiglă.
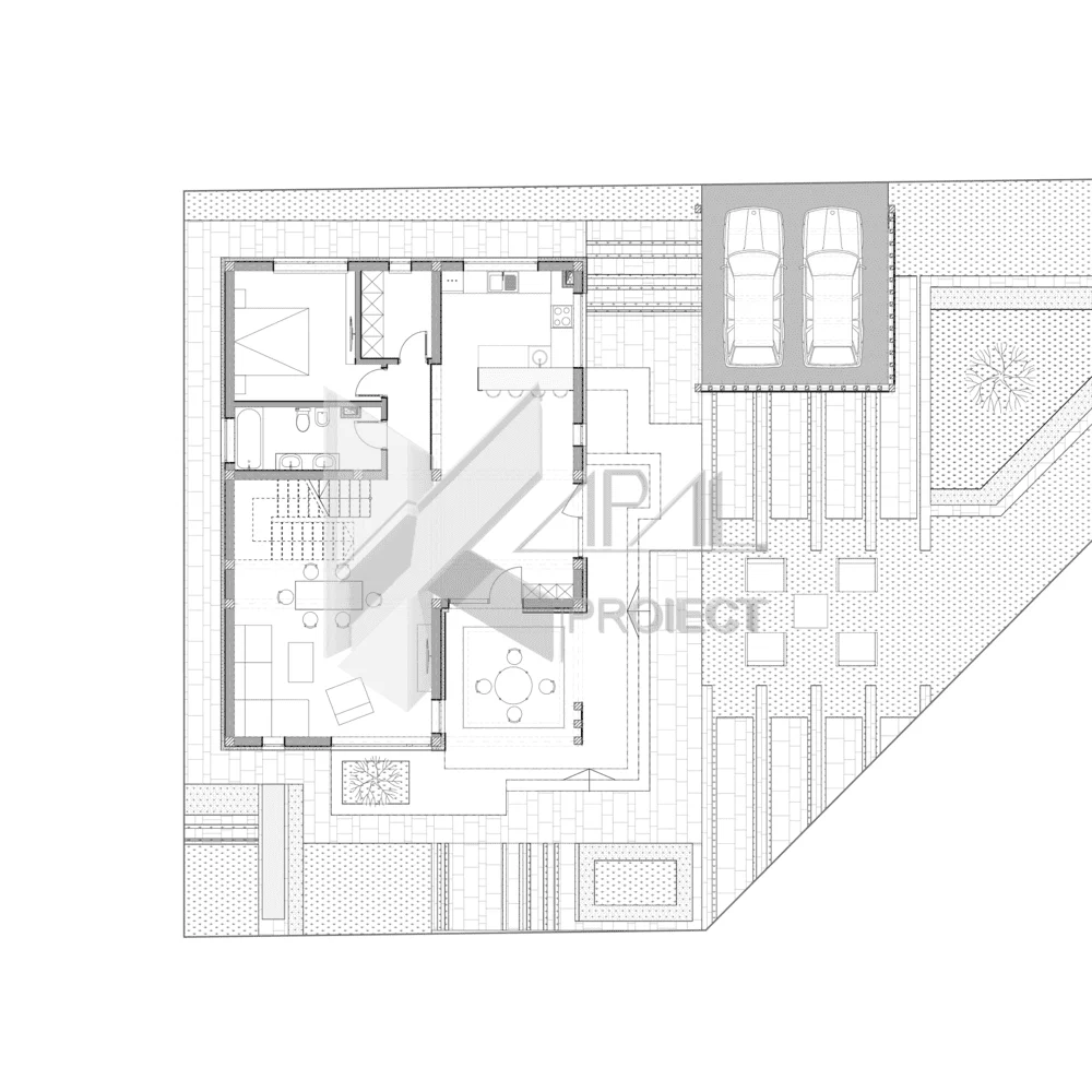
Parter – Zonă de zi
Terasă – 21.87 mp
Zonă acces – 12.16 mp
Living – 25.18 mp
Nod vertical de circulație
Bucătărie open-space – 20.28 mp
Hol – 8.21 mp
Baie – 6.55 mp
Depozitare – 4.46 mp
Dormitor oaspeți – 12.07 mp
Etaj 1 – Zonă de noapte
Nod vertical de circulație
Hol – 7.34 mp
Dormitor – 18.55 mp
Dormitor – 18.39 mp
Dressing – 4.84 mp
Baie – 3.94 mp
Dormitor cu dressing – 23.99 mp
Balcon – 17.67 mp












