Această clădire de locuințe colective cu funcțiune medicală la parter este concepută într-un limbaj arhitectural modern, având regim de înălțime Subsol + Parter + 8 Etaje și o poziționare de capăt de perspectivă, ceea ce îi conferă un rol important în definirea imaginii urbane a zonei.
Volumetria este tratată astfel încât baza vitrată să creeze impresia unui volum superior „plutitor”, accentuând senzația de ușurință a construcției. Colțurile sunt evidențiate prin accente cromatice galbene, iar fațadele sunt dinamizate prin suprafețe vitrate generoase și un joc variat al balustradelor.
Organizarea funcțională separă clar zona de parcare și adăposturile de protecție civilă la subsol, funcțiunile publice la parter și zona rezidențială la nivelurile superioare. Terasa circulabilă de la ultimul nivel include spații verzi, destinate utilizării comune.
Clădirea are o suprafață desfășurată totală de 5.556,49 mp, o suprafață utilă de 4.074,03 mp și este acoperită cu terasă circulabilă, iar peste spațiul tehnic cu terasă necirculabilă.
Subsol
Rampa auto de acces; șas tampon; nod vertical de circulație; un lift (acces tehnic/logistic); hol; șas tampon;
Adăpost de protecție civilă cu șas tampon; grupuri sanitare;
34 locuri de parcare marcate și dimensionate conform normativului; spații tehnice aferente.
Parter
Hol de acces și nod vertical de circulație; două lifturi pentru zona de locuire; spații tehnice;
Clinică medicală:
Sală de așteptare;
Două săli de consultații;
Depozitare (materiale/consumabile);
Două grupuri sanitare pentru pacienți;
Vestiar personal cu grup sanitar dedicat.
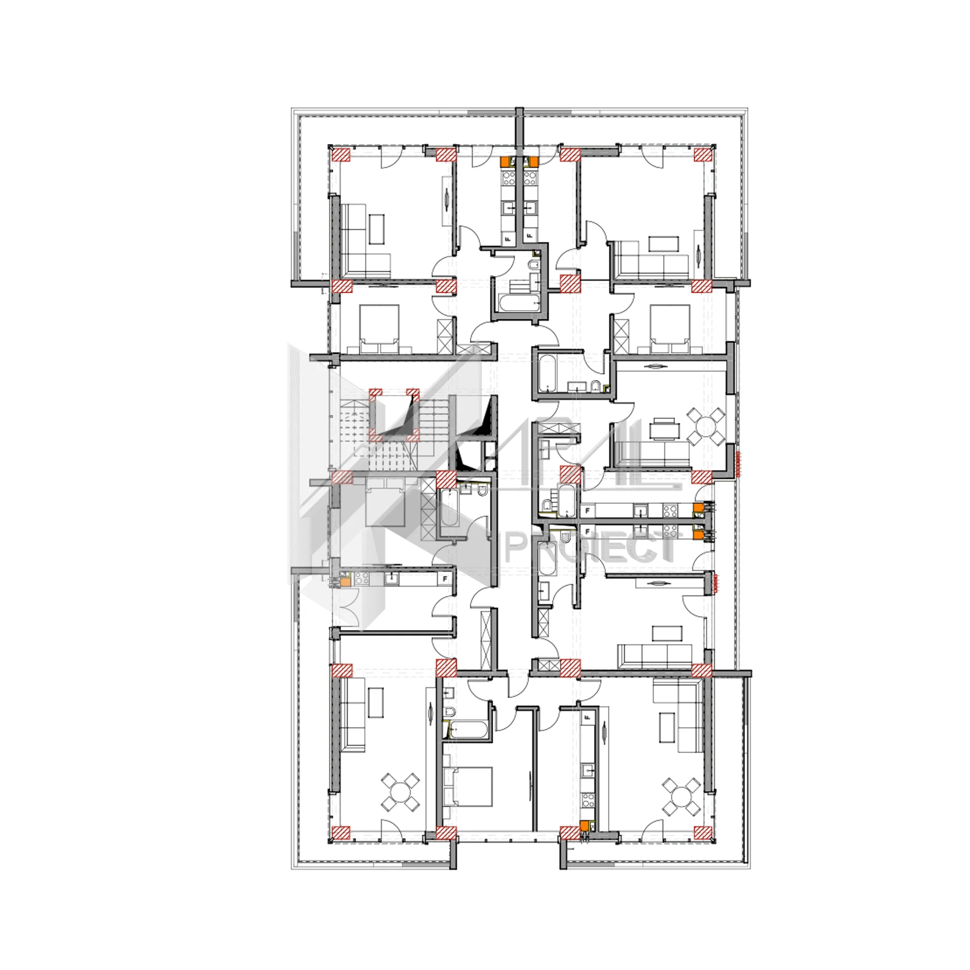
Etaj 1-8
Nod vertical de circulație + două lifturi; hol etaj; 5 apartamente/etaj:
Apartament 1 – 2 camere (Su 56,71 mp)
Hol 8,30 mp, Baie 4,50 mp, Dormitor 12,39 mp, Living 22,54 mp, Bucătărie 8,97 mp, Balcon.
Apartament 2 – Garsonieră (Su 38,38 mp)
Hol 5,43 mp, Baie 4,53 mp, Bucătărie 9,06 mp, Living 19,37 mp, Balcon.
Apartament 3 – Garsonieră (Su 37,00 mp)
Living 22,63 mp, Bucătărie 9,79 mp, Baie 4,58 mp, Balcon.
Apartament 4 – 2 camere (Su 61,57 mp)
Hol 3,94 mp, Living 27,05 mp, Bucătărie 11,15 mp, Dormitor 14,93 mp, Baie 4,50 mp.
Apartament 5 – 2 camere (Su 67,95 mp)
Hol 7,15 mp, Living 30,98 mp, Bucătărie 10,71 mp, Dormitor 14,59 mp, Baie 4,51 mp, Balcon.
Total etaje 1–8: 40 apartamente (8 niveluri × 5 ap./nivel), cu balcoane generoase și orientări variate.
Terasa circulabila
Nod vertical + două lifturi, spațiu tehnic;
Terasă circulabilă cu două spații verzi amenajate (zonare pentru relaxare și belvedere);
Acoperiș spațiu tehnic: terasă necirculabilă.














