Proiectul K019 reprezintă intervenția integrată de modernizare, extindere și etajare P+1 a unui imobil existent, aflat într-o stare de degradare. Soluția arhitecturală propune o volumetrie jucată, cu plinuri și retrageri care articulează un front contemporan, accentuat de placaje din piatră decorativă și tencuieli în nuanțe de gri și alb. Rezultă o imagine coerentă, elegantă și durabilă, perfect adaptată nevoilor actuale ale unei familii moderne.
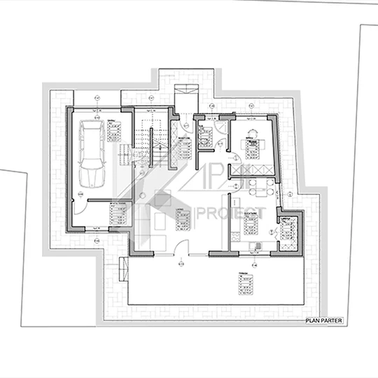
La nivel funcțional, casa oferă circulații clare și eficiente, separând zona de zi la parter de zona de noapte la etaj. Garajul integrat și spațiul tehnic sporesc confortul și ușurința în exploatare, în timp ce terasa generoasă de 33,53 mp extinde spațiul de zi spre exterior, creând o legătură firească între interior și grădină. Bucătăria închisă cu cămară dedicată răspunde cerințelor de organizare, igienă și gătit intensiv.
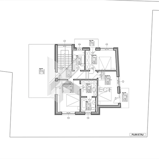
Etajul regrupează trei dormitoare luminoase, dintre care matrimonialul dispune de dressing și baie proprie, asigurând intimitate. Dormitoarele secundare au fiecare balcon, sporind calitatea spațiului prin deschidere și lumină naturală. Holul central optimizează accesul către toate camerele și baie, fără coridoare inutile.
Din punct de vedere tehnic, anvelopa este gândită pentru durabilitate și întreținere redusă, iar acoperișul tip șarpantă cu țiglă metalică Gerard oferă rezistență, etanșeitate și aspect premium. Întregul ansamblu – 164,37 mp utili încadrați într-o suprafață desfășurată de 296,28 mp – propune un echilibru între estetica contemporană, funcționalitate și eficiență.
Parter
Windfang / acces – 4,96 mp, cu rol de protecție climatică și filtrare spre zona de zi
Nod vertical de circulație (scară) – legătură directă cu etajul, poziționată eficient central
Birou – 9,44 mp, ideal pentru lucru de acasă sau cameră de hobby
Grup sanitar – 3,52 mp, accesibil din zona de zi
Bucătărie închisă – 13,54 mp, cu cămară de 2,54 mp pentru depozitare organizată
Spațiu tehnic – 6,08 mp, pentru echipamente și utilități
Garaj integrat – 21,45 mp, acces direct, protecție și confort
Terasă – 33,53 mp, extensie naturală a zonei de zi, ideală pentru dining exterior
Etaj 1
Hol – 7,95 mp, distribuție eficientă către camere și băi
Dormitor 1 – 13,91 mp, balcon propriu
Dormitor 2 – 15,35 mp, balcon propriu
Dormitor matrimonial – 16,07 mp, cu dressing 6,01 mp și baie proprie 4,85 mp
Baie comună – 5,23 mp, deservind dormitoarele secundare












