Acest proiect este o casă modernă P+1E concepută special pentru terenuri înguste, oferind o împărțire funcțională și o volumetrie contemporană care valorifică lumina naturală și intimitatea. Cu 165,33 mp utili și 258,28 mp desfășurați, proiectul îmbină o zonă de zi open-space la parter cu o zonă de noapte bine organizată la etaj, completată de spații de depozitare generoase (dressinguri, debara, uscător).
Vitrajele ample și orientarea cardinală optimă amplifică lumina și relația cu exteriorul, în timp ce glisarea volumelor creează copertine pentru acces și terasa din spate, oferind protecție și confort sezonier. Limbajul materialelor contrastează elegant: tencuială decorativă albă pe volumele principale, placaj Trespa gri și placaj de lemn pentru accente calde, respectiv piatră decorativă albă pentru textură. Profilul de tablă zincată tip „U” subliniază orizontalitatea fațadelor, iar ancadramentele subțiri din tablă zincată maro pun în valoare ramele ferestrelor.
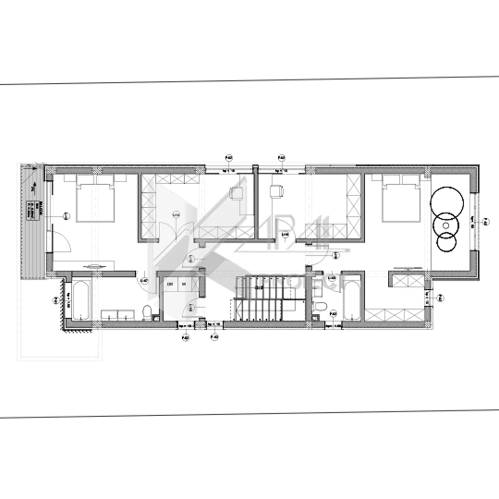
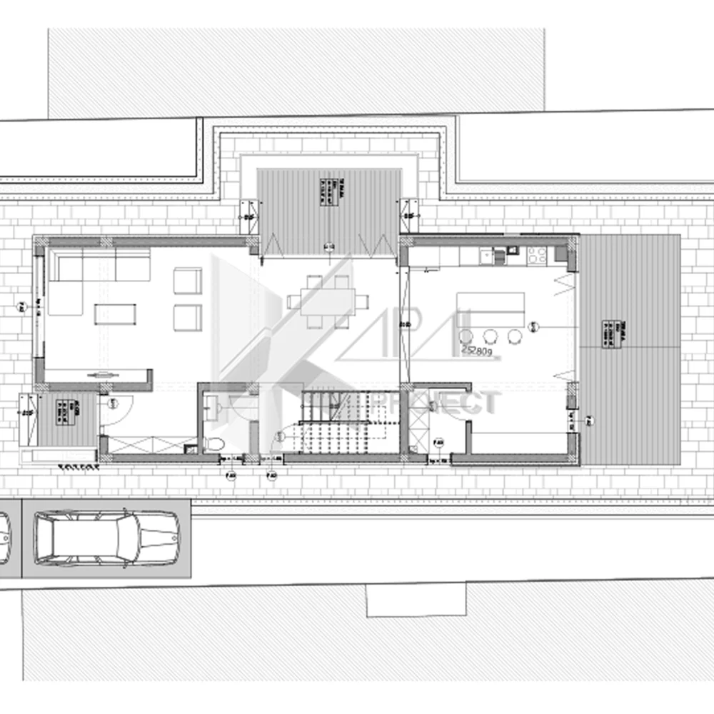
Planul parterului propune o zona de zi fluidă—living, dining și bucătărie open-space—cu două terase ce extind spațiul către exterior, ideale pentru mese în aer liber și relaxare. Etajul reunește două dormitoare: un master complet (dormitor + dressing + baie), un al doilea dormitor generos cu dressing propriu, plus uscător separat, pentru o întreținere simplificată a locuinței. Acoperișul tip terasă necirculabilă și detaliile metalice asigură o estetică clară, contemporană și o întreținere facilă.
Prin optimizarea circulațiilor și a raportului plin-gol, K039 oferă o locuire confortabilă, luminoasă și eficientă energetic, într-un format compact ce respectă constrângerile unui lot îngust fără a compromite calitatea spațiului.
Parter
Hol acces – 4,79 mp
Living – 24,98 mp
Dining – 15,54 mp
Bucătărie open-space – 24,86 mp
Grup sanitar – 2,59 mp
Nod vertical de circulație (scară)
Terase: 10,35 mp (față) și 20,49 mp (spate)
Debara – DA (spațiu tehnic/depozitare util pentru zona de zi)
Etaj 1
Hol – 8,83 mp
Uscător – 2,77 mp
Dormitor matrimonial – 17,44 mp
Dressing matrimonial – 12,65 mp
Baie matrimonială – 6,67 mp
Dormitor 2 – 20,43 mp
Dressing – 4,95 mp
Nod vertical de circulație












