Locuinta individuala moderna, cu regim de inaltime parter si etaj, este conceputa pentru a oferi un echilibru intre functionalitate si expresie arhitecturala contemporana. Proiectul se remarca printr-o compozitie volumetrica dinamica, definita de intersectia volumelor si de etajul iesit in consola fata de parter, elemente care confera cladirii un aspect modern si recognoscibil.
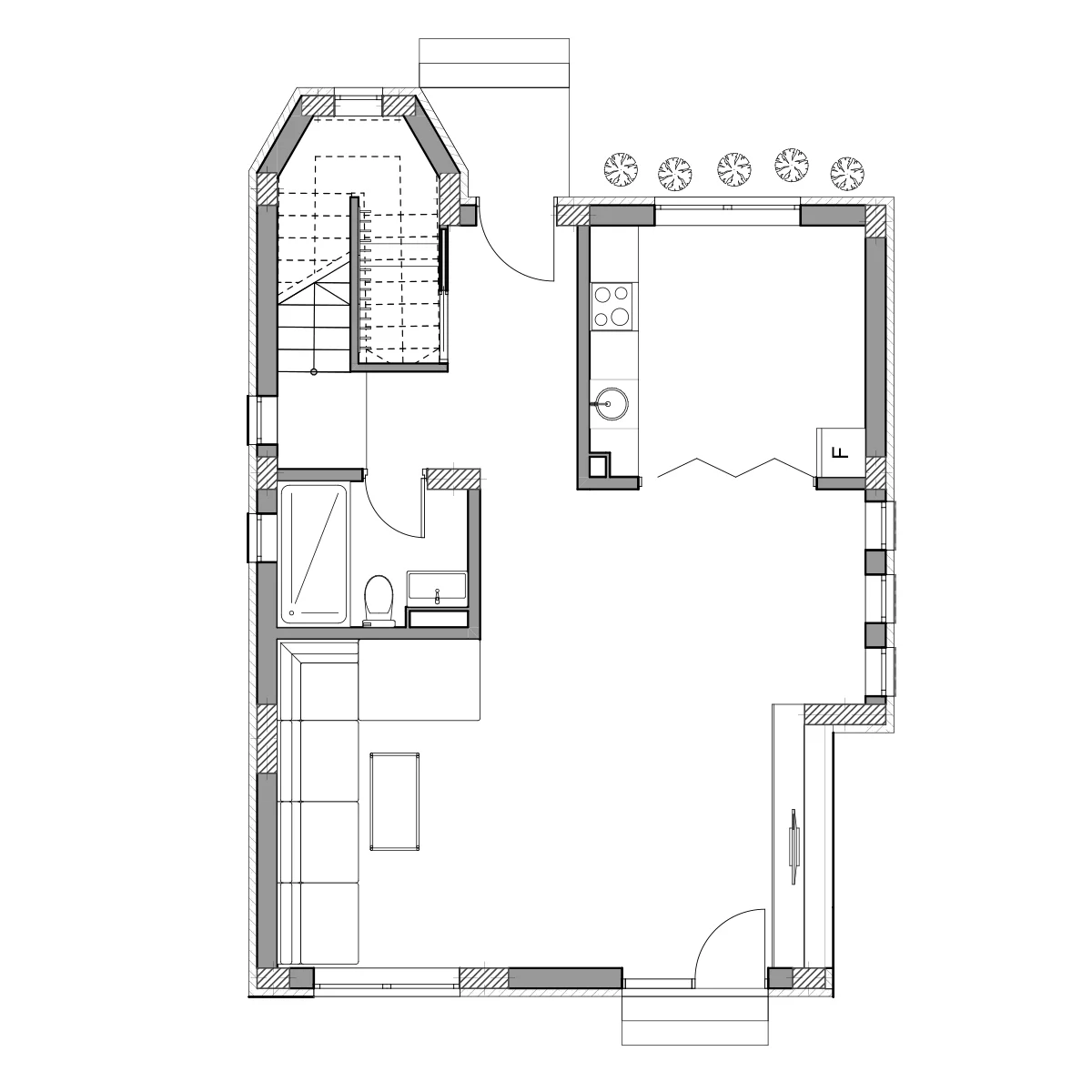
La nivelul parterului sunt organizate spatiile zonei de zi, accesibile dintr-un hol de 6.00 mp ce conduce catre un living generos de 36.01 mp, conceput ca nucleu principal al locuintei. Bucataria de 10.46 mp este eficient integrata in ansamblu, iar spatiile auxiliare includ o baie si o zona de depozitare, completate de nodul vertical de circulatie care face legatura cu etajul.
Etajul este dedicat zonei de noapte si se organizeaza in jurul unui hol de distributie de 6.53 mp. Nivelul cuprinde doua dormitoare, o baie comuna si un dormitor matrimonial de 13.90 mp, completat de dressing propriu si baie dedicata, oferind un plus de confort si intimitate. Un balcon completeaza acest nivel, oferind deschidere spre exterior.
Cladirea atrage atentia prin coltul tesit al fatadei orientate catre strada, tratat diferit fata de restul volumului, devenind elementul distinctiv al compozitiei. Acesta este evidentiat prin utilizarea caramizii aparente in nuanta maro, in contrast cu suprafetele finisate cu tencuiala fina alba si bej, contribuind la un aspect modern si echilibrat al fatadei.
Locuinta are dimensiunile de 11.20 x 7.95 m, o amprenta la sol de 138.99 mp, o suprafata desfasurata totala de 219.58 mp, din care 1.68 mp reprezinta suprafata balconului, si o suprafata utila de 165.28 mp. Acoperisul este de tip sarpanta, completand coerent imaginea generala a unei locuinte moderne, bine proportionate si eficient organizate.












