Proiectul K025 propune o casă modernă P+1E cu o volumetrie clară, animată de balconul central care devine semnătura estetică a fațadelor. Ferestrele ample aduc multă lumină naturală, păstrând în același timp intimitatea necesară locuirii prin organizare atentă a golurilor și parapetelor.
Paleta de finisaje calde (tencuială decorativă albă, placaj de cărămidă maro, placaj Trespa maro) conferă armonie și senzația de casă de vacanță. Detaliul de coronament, în care aticul se continuă în parapetul balconului, creează o linie fluidă ce unifică ansamblul.
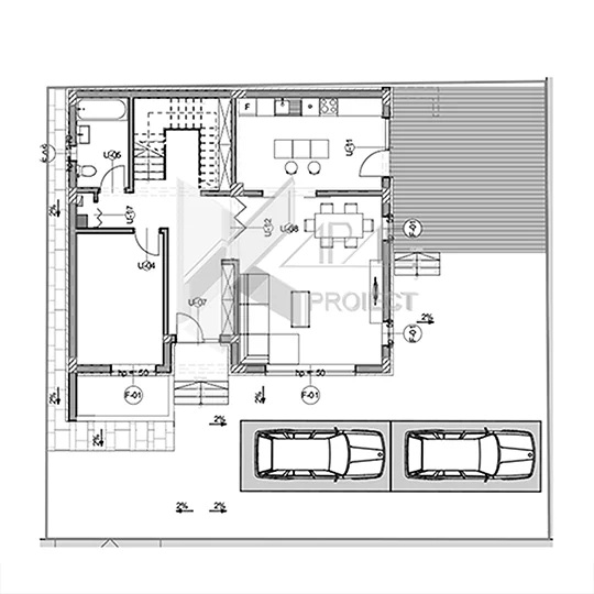
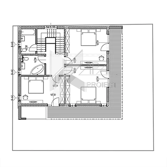
Funcțional, locuința optimizează raportul dintre suprafețele de zi și cele de noapte: parterul găzduiește spațiile sociale și un birou confortabil, iar etajul este rezervat odihnei, cu două dormitoare spațioase deschise către un balcon comun. Dimensiunile generale (10,90 × 9,60 m) și amprenta la sol de 102,83 mp susțin o implementare eficientă pe loturi urbane tipice. Suprafața utilă de 160,75 mp și suprafața desfășurată de 260,05 mp (din care 52,54 mp terase/balcoane) asigură spațiu suficient pentru o familie activă. Acoperișul-terasă necirculabilă simplifică întreținerea și accentuează linia contemporană.
Parter
Hol + nod vertical: 21,12 mp – zonă de primire cu circulație clară și depozitare integrabilă
Baie: 5,10 mp – utilă pentru oaspeți și uz zilnic
Birou: 13,12 mp – spațiu de lucru liniștit, ideal pentru work-from-home
Living: 27,87 mp – spațiu generos, conectat vizual cu exteriorul
Bucătărie: 15,09 mp – cu deschidere către terasa principală, potrivită pentru dining în aer liber
Etaj 1
Hol + nod vertical: 8,42 mp – distribuție eficientă către toate camerele
Două băi: 6,15 mp și 5,13 mp – confort sporit pentru familie
Dormitor 1: 21,74 mp – spațios, cu acces pe balconul comun
Dormitor 2: 20,44 mp – spațios, cu acces pe balconul comun











