Se propune o locuință individuală modernă P+1E gândită pentru o familie care își dorește spații luminoase, eficient organizate și o relație firească cu exteriorul. Cu o suprafață utilă de 161,20 mp (268,72 mp desfășurată) și o amprentă de 127,40 mp, casa valorifică lotul printr-o planchietă compactă (14,65 × 11,00 m) și o volumetrie clară.
Parterul este dedicat vieții de zi: livingul cu loc de luat masa se deschide către terasa exterioară care funcționează ca o punte între interior și grădină, iar bucătăria conectată păstrează intimitatea necesară fără a rupe fluxul de utilizare. Biroul de la parter permite lucru de acasă sau studiu în liniște, în timp ce spațiul tehnic și grupul sanitar completează funcțiunile esențiale. Garajul de 36,68 mp este integrat volumetric, dinamizând fațada către stradă și generând terasa superioară pentru dormitorul matrimonial.
La etaj, zona de noapte cuprinde trei dormitoare și o baie generoasă, iar dormitorul matrimonial beneficiază de dressing separat și terasa de 42,05 mp, un spațiu de relaxare privat, cu orientare favorabilă. Golurile vitrate ample creează un ritm ordonator al fațadelor și aduc lumină naturală pe tot parcursul zilei.
Materialele propuse — tencuială albă și gri închis, completate de placaje de cărămidă și piatră decorativă crem — conturează o estetică modernă, cu aluzii industriale discrete, coerentă cu cerințele locuirii contemporane. Șarpanta în patru ape oferă protecție suplimentară, durabilitate și o siluetă elegantă.
Rezultatul este o casă echilibrată între funcționalitate și expresivitate, cu flux interior-exterior fluid, intimitate pentru zona de noapte și spații comune ample pentru viața de familie.
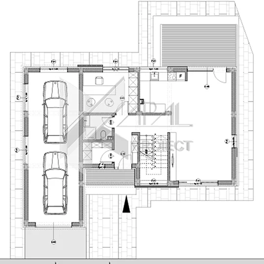
Parter
Hol – 9,07 mp, cu spații pentru depozitare și acces controlat către zonele principale
Nod vertical de circulație – scară centrală, iluminată natural prin golurile fațadei
Spațiu tehnic – 3,00 mp, pentru echipamente și întreținere
Grup sanitar – 3,33 mp, poziționat strategic pentru zona de zi
Birou – 10,48 mp, ideal pentru work-from-home sau cameră hobby
Living + loc de luat masa – 28,12 mp, open-space cu deschidere către terasă
Bucătărie – 8,55 mp, aproape de dining, cu posibilitate de bar/insula
Terasă – 14,92 mp, legătură directă cu livingul și grădina
Garaj – 36,68 mp, acces direct în casă
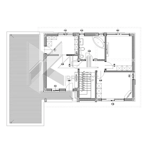
Etaj 1
Nod vertical de circulație – distribuție clară către dormitoare
Hol – 4,04 mp
Baie – 8,41 mp, dimensionată pentru utilizare confortabilă de către întreaga familie
Dormitor 1 – 12,86 mp
Dormitor 2 – 13,39 mp
Dormitor matrimonial – 14,89 mp cu dressing 8,37 mp
Terasă matrimonială – 42,05 mp, spațiu de relaxare privat, generat de volumul garajului












