Locuință individuală modernă cu regim P+1E+M, proiectată pentru familii care își doresc spațiu, lumină naturală și o organizare clară. Planul se dezvoltă în jurul nodului vertical de circulație amplasat central, ceea ce scurtează traseele și permite acces rapid către toate zonele. Fațadele propun goluri generoase, terasă la parter și balcon la etaj, iar compoziția cromatică în tonuri alb–gri–negru conturează un look curat, contemporan.
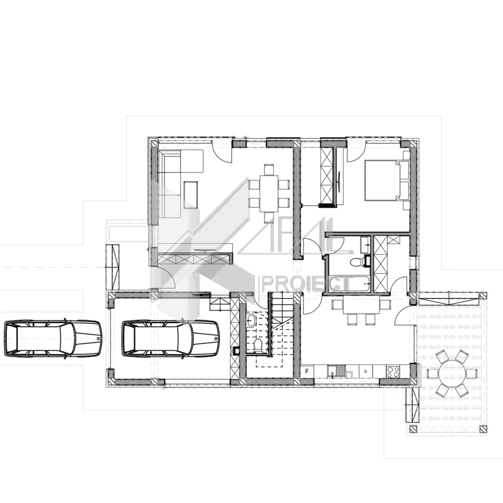
La parter, zona de zi este fluidă și primitoare, cu living de 28,98 mp conectat la terasă și bucătărie de 17,61 mp, ideală pentru socializare. Tot aici se regăsesc un dormitor cu baie dedicată, grup sanitar separat, dressing, windfang și garajul integrat, plus camera tehnică – o formulă completă pentru confortul zilnic. La etajul 1, planul oferă patru dormitoare (două cu dressing propriu) și două băi, plus balcon generos, configurate pentru intimitate și funcționalitate. Mansarda devine „refugiul” creativ al casei – o cameră hobby de ~100 mp și o baie, spațiu flexibil pentru home cinema, studio, sală de joacă sau fitness.
Cu 311,14 mp utili și 433,33 mp desfășurați, K078 îmbină funcționalitatea cu estetica modernă, oferind un habitat ușor de întreținut, versatil și pregătit pentru stiluri de viață dinamice. Kapal Proiect a gândit acest model pentru parcele urbane sau periurbane, maximizând lumina, priveliștile și conexiunile dintre interior și exterior.













