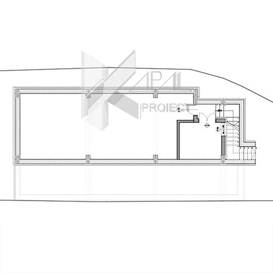
Subsol
Cameră tehnică – 51,84 mp
Cameră centrală – 7,42 mp
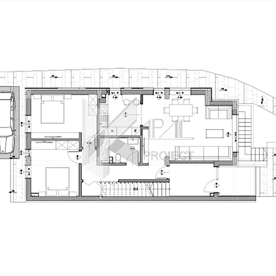
Parter
Windfang (tampon climatic) – 7,47 mp
Nod vertical de circulație
Hol – 6,91 mp
Living + loc de luat masa – 27,07 mp
Bucătărie – 7,66 mp
Baie – 4,67 mp
Dormitor – 14,38 mp
Dormitor – 12,56 mp
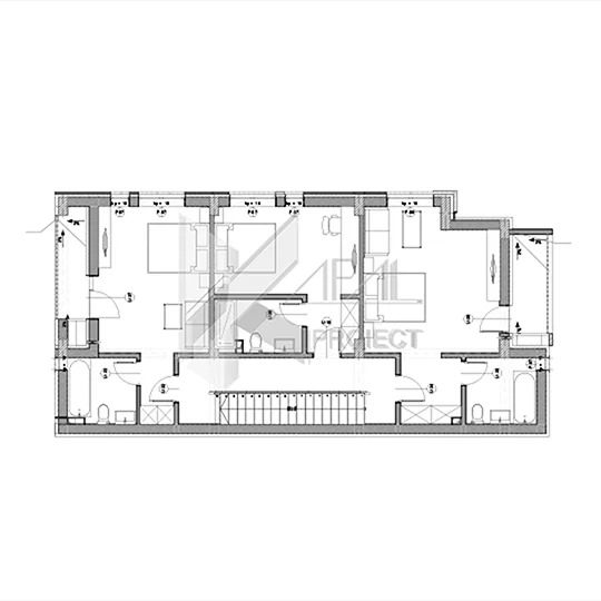
Etaj 1 , 2
Nod vertical de circulație
Hol – 10,24 mp
Dormitor matrimonial – 17,25 mp + hol 2,46 mp + baie 4,59 mp + logie 4,00 mp
Dormitor – 16,10 mp + baie 4,68 mp
Dormitor matrimonial – 19,62 mp + hol 4,05 mp + baie 4,81 mp + balcon 4,32 mp














