Această locuință modernă este concepută pentru o familie numeroasă, având regim de înălțime Subsol + Parter + 2 Etaje și o organizare funcțională clară. Volumetria este articulată astfel încât fiecare nivel să beneficieze de terase sau balcoane, asigurând o relație constantă între spațiile interioare și exterior.
Subsolul este dedicat funcțiunilor tehnice și depozitării, parterul găzduiește zona de zi și un dormitor, iar etajele superioare sunt rezervate zonei de noapte, cu camere prevăzute cu băi proprii. Suprafețele vitrate generoase și orientarea favorabilă asigură iluminare naturală și ventilare eficientă.
Finisajele combină tencuiala decorativă albă cu placaje din piatră gri și cărămidă maro, rezultând o imagine contemporană și echilibrată. Fațada principală marchează accesul și liniaritatea compoziției, iar fațada posterioară este caracterizată de terase mai ample, datorită gradului sporit de intimitate.
Locuința are o suprafață desfășurată totală de 468,23 mp, o suprafață utilă de 314,91 mp și este acoperită cu șarpantă cu învelitoare din țiglă.
Subsol
Scară interioară
Scară exterioară
Spațiu depozitare – 50.50 mp
Spațiu depozitare – 3.05 mp
Cameră tehnică – 26.41 mp
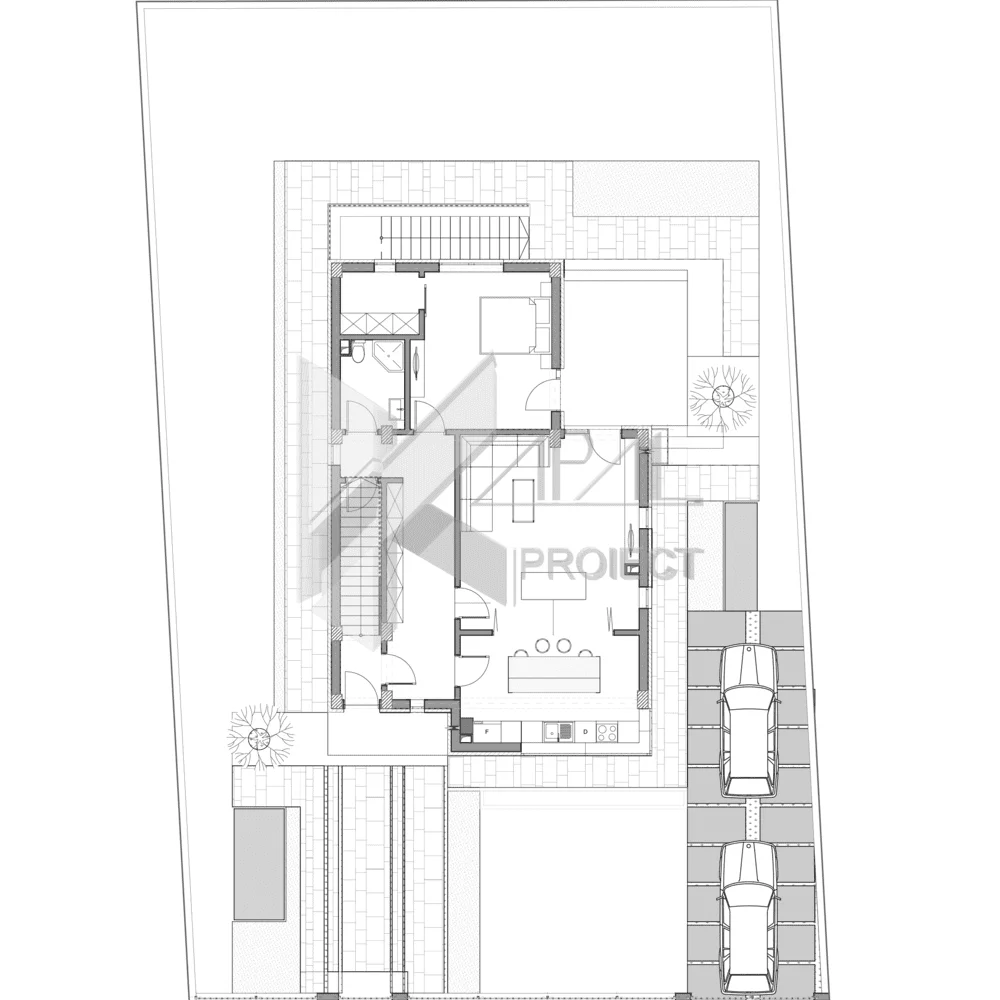
Parter – Zonă de zi
Windfang – 2.12 mp
Nod vertical de circulație
Hol – 15.04 mp
Bucătărie – 14.87 mp
Living – 26.81 mp
Dormitor – 16.78 mp
Dressing – 3.98 mp
Baie – 4.33 mp
Terasă – 15.30 mp
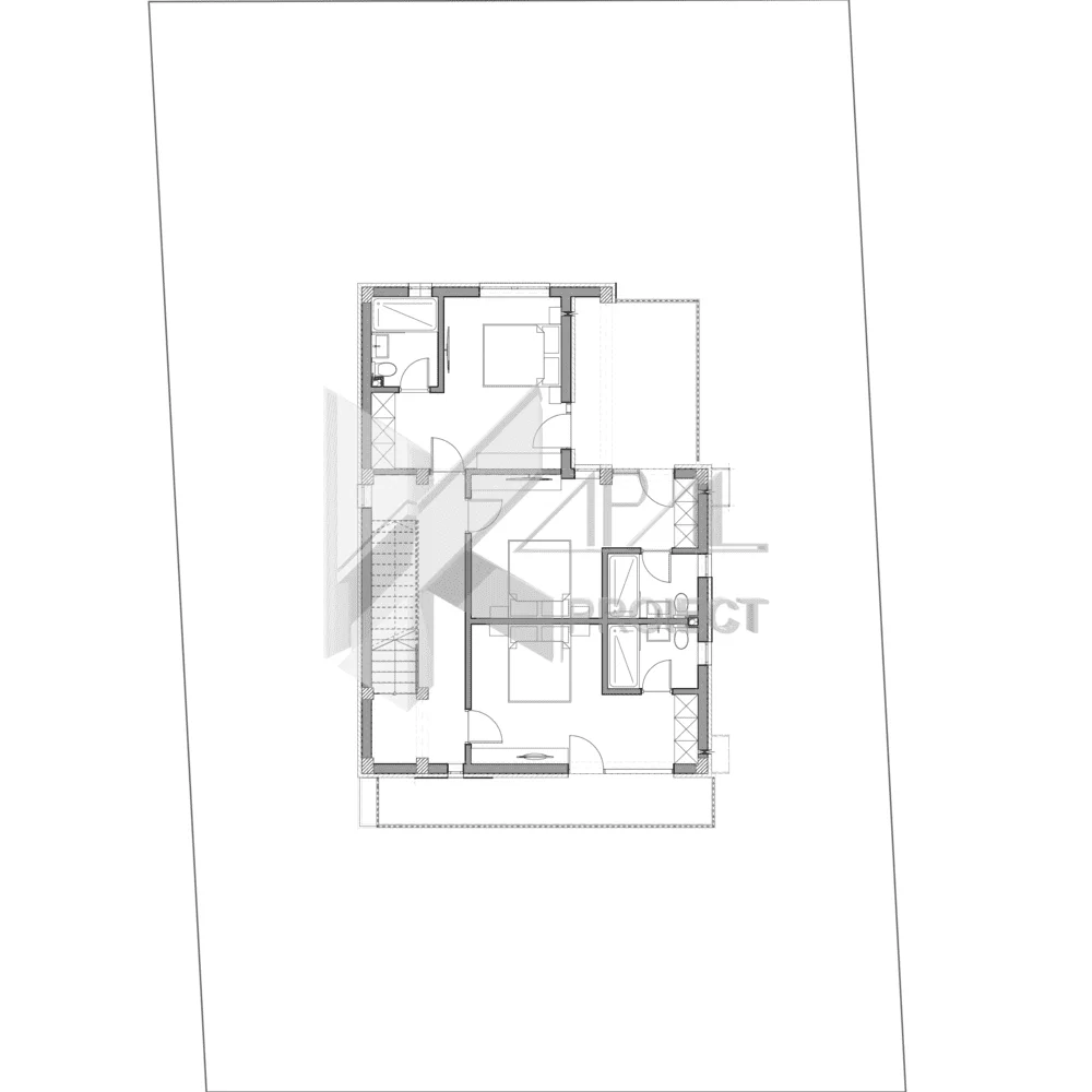
Etaj 1 – Zonă de noapte
Nod vertical de circulație
Dormitor – 16.68 mp
Baie – 3.76 mp
Balcon – 10.86 mp
Dormitor – 16.54 mp
Baie – 3.72 mp
Dormitor – 17.00 mp
Baie – 3.83 mp
Terasă – 12.96 mp
Etaj 2 – Zonă de noapte
Nod vertical de circulație
Hol – 7.84 mp
Cameră – 30.09 mp
Baie – 4.22 mp
Balcon – 6.84 mp
Cameră – 26.93 mp
Baie – 3.84 mp
Balcon – 11.83 mp














