Această casă modernă este concepută ca o locuință cuplată, cu spațiu comercial integrat la nivelul parterului, având o volumetrie compactă și o organizare funcțională clară. Regimul de înălțime Parter + Etaj 1 permite separarea eficientă a zonei de zi și a spațiilor cu caracter public la parter, respectiv a zonei de noapte la nivelul superior.
Parterul găzduiește livingul generos, bucătăria închisă, biroul, spațiile tehnice și o baie, toate organizate pentru confort și utilizare eficientă. Etajul este dedicat zonei de noapte și cuprinde trei dormitoare, fiecare cu baie proprie, dormitorul principal beneficiind de dressing și balcon, iar celelalte două având acces la un balcon comun.
Imaginea arhitecturală este definită de o cromatică monocromă, cu tencuială albă, accente antracit și placaje din piatră decorativă albă și gri, completate de ancadramente metalice la ferestre. Clădirea are o suprafață desfășurată totală de 265,02 mp, o suprafață utilă de 168,60 mp și este acoperită cu terasă necirculabilă.
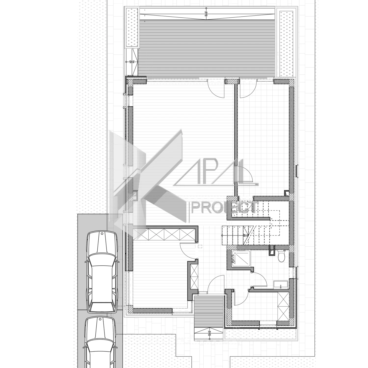
Parter
Hol – 6.72 mp
Cameră tehnică – 4.51 mp
Baie – 4.74 mp
Birou – 12.51 mp
Nod vertical de circulație
Living – 38.46 mp
Bucătărie închisă – 15.96 mp
Terasă – 21.75 mp
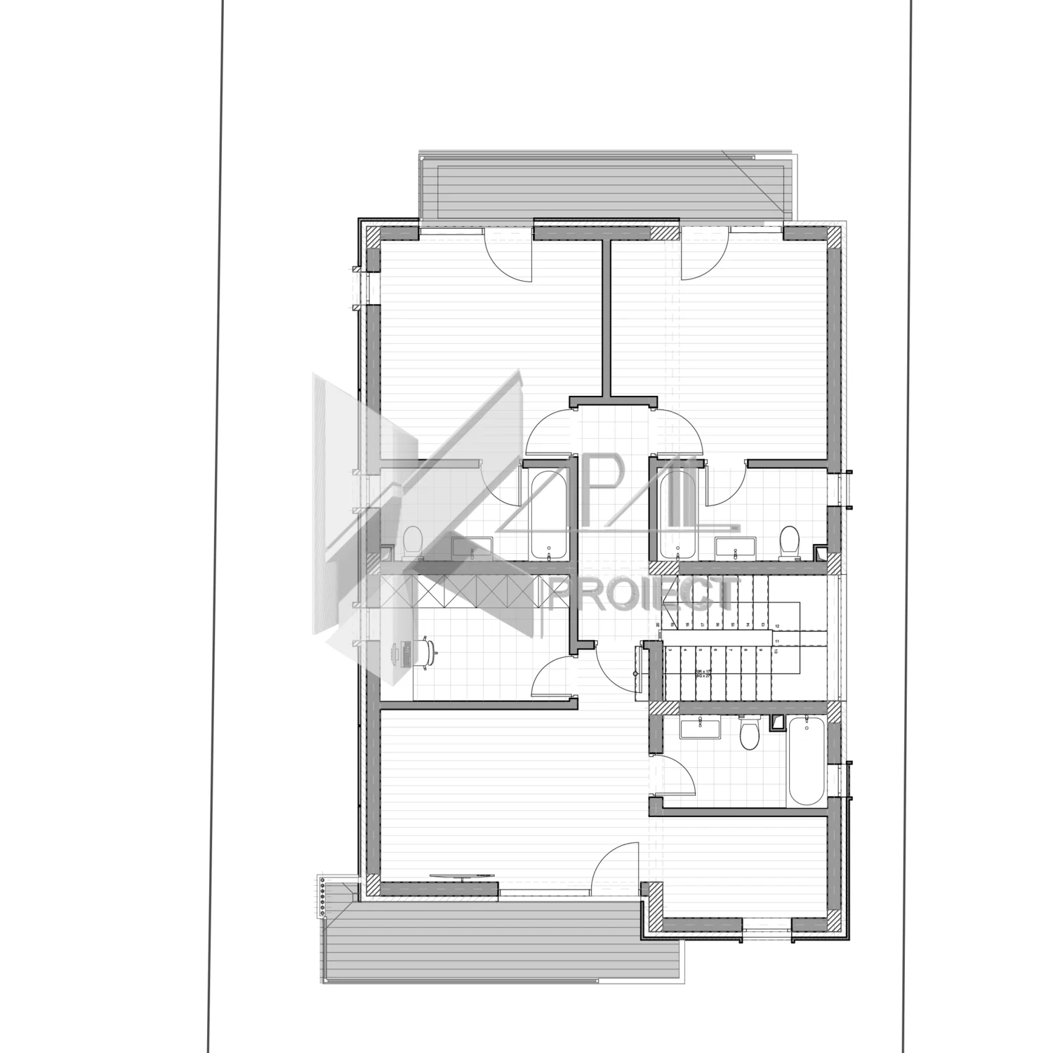
Etaj 1
Hol – 5.86 mp
Dormitor matrimonial
Dormitor – 17.05 mp
Dressing – 7.93 mp
Baie – 5.01 mp
Balcon – 9.43 mp
Dormitor 2
Dormitor – 15.52 mp
Baie – 5.79 mp
Balcon comun – 8.85 mp
Dormitor 3
Dormitor – 14.82 mp
Baie – 5.20 mp
Balcon comun – 8.85 mp












