Această locuință individuală este concepută într-un limbaj arhitectural modern, cu regim de înălțime Parter + Etaj 1 și o volumetrie compactă, bine proporționată. Casa se adresează unei familii și propune o organizare funcțională clară, cu separarea zonei de zi la parter și a zonei de noapte la etaj.
Fațadele sunt caracterizate prin goluri vitrate ample, care permit iluminarea naturală optimă a spațiilor interioare, precum și prin balcoane și terase generoase ce asigură o relație directă cu exteriorul. Materialele utilizate — tencuială fină în nuanțe de alb, cărămiziu și negru — creează o imagine monocromatică, specifică arhitecturii contemporane.
Clădirea are o lungime de 12,65 m și o lățime de 9,00 m, o amprentă la sol de 112,81 mp, o suprafață desfășurată totală de 261,08 mp (din care 37,26 mp balcoane și terase) și o suprafață utilă de 170,33 mp. Acoperișul este de tip șarpantă.
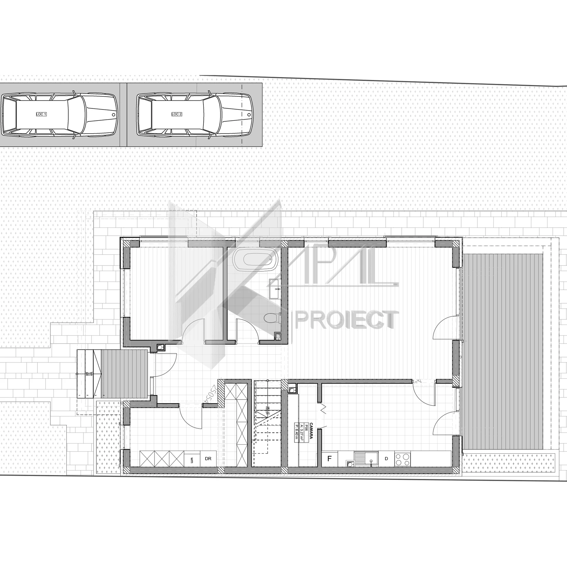
Parter
Hol – 8.33 mp
Birou – 11.90 mp
Spațiu tehnic – 10.26 mp
Nod vertical de circulație
Baie – 6.82 mp
Living + loc de luat masa – 29.89 mp
Bucătărie – 14.95 mp
Cămară – 3.27 mp
Terasă – 12.38 mp
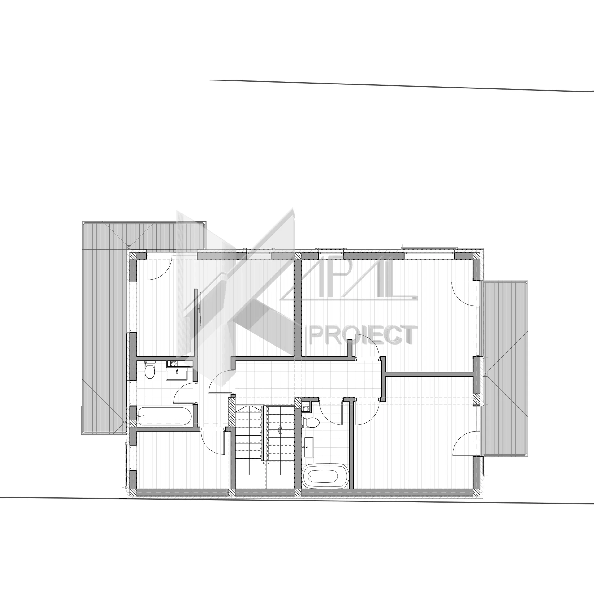
Etaj 1
Nod vertical de circulație
Hol – 9.15 mp
Dressing – 8.29 mp
Baie – 4.40 mp
Dormitor – 19.32 mp
Dormitor cu dressing – 22.66 mp
Dormitor – 15.97 mp
Baie – 5.13 mp












