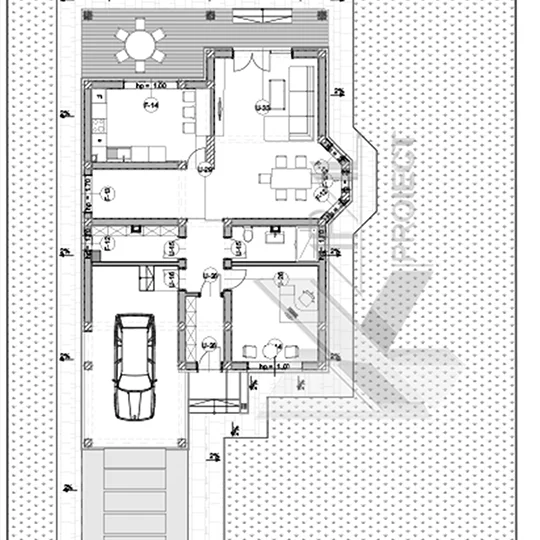
Parter
Windfang – 9,17 mp, zonă tampon la intrare, protejează spațiile interioare.
Nod vertical de circulație – acces direct către etaj.
Garaj – 23,58 mp, acces facil dinspre stradă.
Spațiu tehnic – 5,15 mp, zonă dedicată echipamentelor.
Birou – 13,82 mp, ideal pentru lucru de acasă sau cameră flexibilă.
Baie – 5,15 mp, deservire pentru zona de zi și birou.
Bucătărie – 14,13 mp, separată, cu posibilitate de organizare ergonomic–funcțională.
Living + loc de luat masa – 33,38 mp, spațiu generos, cu deschidere către terasa de 20,29 mp, perfect pentru socializare și relaxare.
Etaj 1
Nod vertical de circulație și Hol – 5,70 mp, distribuție eficientă către dormitoare.
Dormitor – 13,85 mp.
Dormitor – 14,51 mp.
Baie – 5,71 mp, comună pentru cele două dormitoare secundare.
Dormitor matrimonial – 18,28 mp, cu dressing de 8,05 mp și baie proprie de 4,99 mp, pentru intimitate și confort sporit.












