Proiectul propune o locuință individuală modernă pe regim P+1E, gândită pentru o viață confortabilă și fluidă. Volumetria curată și golurile vitrate mari aduc lumină naturală în toate zonele cheie, în timp ce asocierea pietrei cu lemnul conferă un aer contemporan cu accente rustice.
Spațiile exterioare sunt o reală plus-valoare: 106,70 mp de terase și balcoane extind zona de zi și dormitoarele către exterior, creând locuri pentru relaxare, dining și vedere spre grădină.
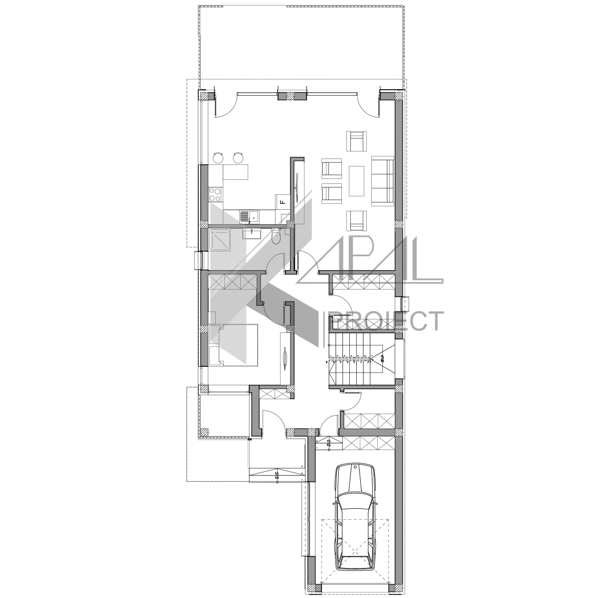
Funcțional, casa oferă garaj și spații tehnice bine poziționate, depozitări generoase și o scară centrală ce leagă logic nivelurile. Finisajele în tonuri pământii, împreună cu tencuiala albă și detaliile metalice, asigură o imagine elegantă și durabilă. Acoperișul tip șarpantă completează ansamblul cu un profil arhitectural echilibrat.












