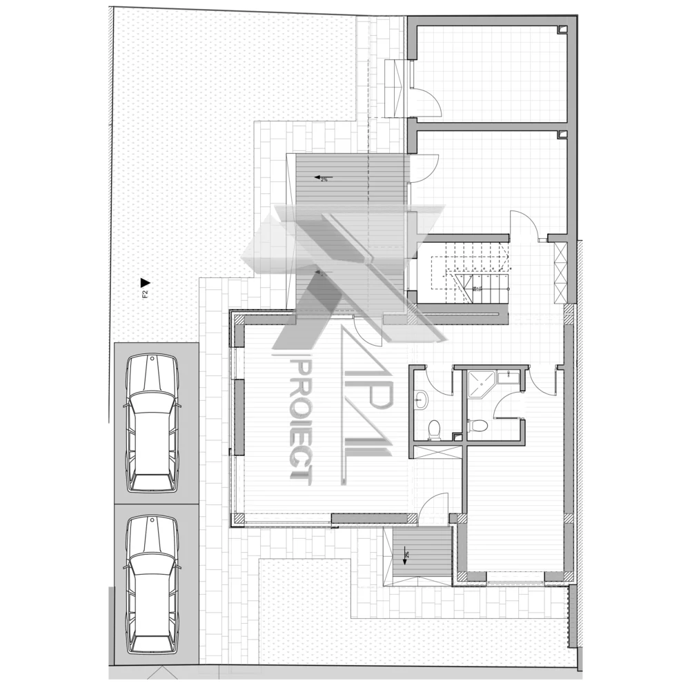
Acest proiect este o locuință individuală modernă cu regim P+1E, dezvoltată pe un plan în forma literei T pentru a separa clar zonele de zi de spațiile de noapte și pentru a crea o relație firească între interior și exterior. Corpul orientat spre stradă găzduiește zona de zi – un living generos cu loc de luat masa, bine conectat vizual la exterior prin goluri ample – iar corpul posterior include bucătăria, deservită de o terasă de 17,08 mp ce leagă natural diningul de grădină.
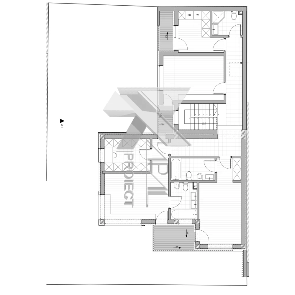
La etaj, compartimentarea oferă intimitate ridicată: un dormitor matrimonial cu dressing și baie proprie, un dormitor secundar, un dormitor pentru oaspeți și o spălătorie separată. Balcoanele facilitează ventilarea naturală și extinderea spațiului de sejur în aer liber, două dintre dormitoarele sudice fiind conectate printr-un balcon comun.
Cromatica în tonuri de alb și gri închis, alături de placaje HPL gri și lemn stratificat cu vegetație (iederă), conferă volumelor o expresie contemporană, fresh, ușor de adaptat gusturilor beneficiarilor. Golurile generoase de ferestre aduc lumină din abundență, animând interioarele pe parcursul zilei. Cu amprentă la sol de 130,60 mp, suprafață desfășurată totală de 287,30 mp și utilă de 186,18 mp, casa propune un echilibru optim între funcționalitate, confort și estetică. Acoperișul tip șarpantă completează compoziția într-un limbaj coerent și elegant.
Parter
Windfang: 3,15 mp – acces și filtrare termică/acustică.
Living + loc de luat masa: 29,83 mp – spațiu generos, bine luminat, deschis către terasă.
Hol: 10,58 mp – distribuție clară între zone.
Nod vertical de circulație (scara) – poziționare centrală pentru trasee scurte.
Grup sanitar: 3,23 mp – accesibil oaspeților.
Birou: 13,62 mp – ideal pentru work-from-home sau cameră hobby.
Baie: 3,63 mp – suplimentar, crește confortul la nivelul parterului.
Bucătărie: 14,92 mp – relație directă cu terasa; favorizează fluxul servire-dining.
Terasa: 17,08 mp – spațiu de tranziție între living și bucătărie, pentru dining exterior.
Magazie: 13,88 mp – depozitare voluminoasă (echipamente, biciclete, sezonier).
Etaj 1
Nod vertical de circulație + Holuri: 7,68 mp + 7,50 mp – distribuție eficientă către camere.
Dormitor oaspeți: 14,08 mp, cu balcon 2,20 mp – autonomie și confort pentru vizitatori.
Baie: 7,90 mp – baie comună spațioasă.
Spălătorie: 8,00 mp – spațiu tehnic dedicat, reduce traficul și dezordinea la parter.
Balcon secundar: 2,71 mp – ventilare și spațiu exterior suplimentar.
Dormitor: 15,71 mp, cu baie proprie 5,12 mp – confort individual.
Dormitor matrimonial: 18,74 mp, dressing 7,75 mp, baie 4,98 mp – suită completă.
Balcon comun sud: 4,35 mp – leagă cele două dormitoare de pe latura sudică.












