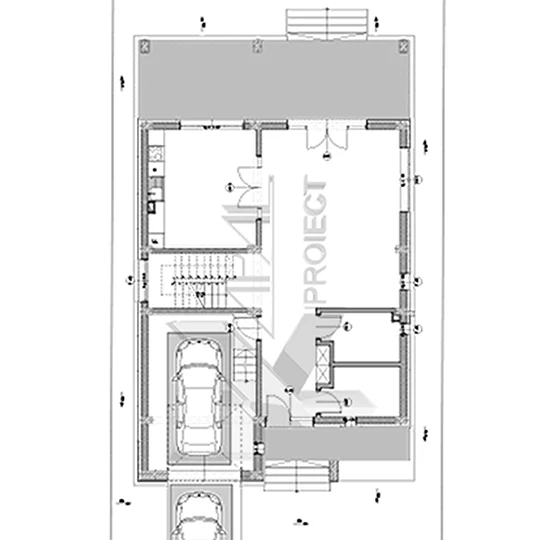
Parter
Windfang / acces: 9,17 mp – zonă tampon care protejează termic și organizează intrarea.
Nod vertical de circulație (scară) – poziționat central pentru flux optim.
Cameră tehnică: 5,14 mp – spațiu pentru echipamente și utilități.
Grup sanitar: 5,05 mp – accesibil din zona de zi.
Bucătărie: 18,19 mp – spațiu generos, cu posibilitate de insulă și relație fluentă cu livingul.
Living: 37,67 mp – zonă de zi amplă, cu posibilitate de deschidere către terasă/grădină.
Garaj: 21,93 mp – acces direct, util pe timp nefavorabil și pentru depozitări.
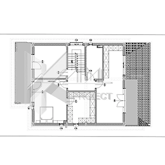
Etaj 1
Nod vertical + Hol: 7,17 mp – distribuție eficientă către toate camerele.
Baie: 7,81 mp – dimensionare confortabilă pentru zona de noapte.
Dormitor 1: 17,27 mp + Dressing 9,54 mp + Balcon 8,19 mp – spațiu echilibrat, lumină bună și depozitare dedicată.
Dormitor matrimonial: 20,75 mp + Dressing 12,49 mp + Balcon 13,64 mp – suită matrimonială cu depozitare generoasă și deschidere spre exterior.
Birou: 15,53 mp – ideal pentru lucru remote sau cameră hobby.













