Acest proiect este o locuință modernă P+1E, gândită pentru familii care își doresc spații luminoase, circulații clare și un raport optim între suprafețe și confort. Volumetria compactă reduce pierderile termice și se adaptează ușor la loturi urbane medii, iar fațadele în alb și gri închis, accentuate cu piatră decorativă gri deschis, conferă casei un caracter contemporan, ușor de întreținut și atemporal.
La parter, zona de zi este concepută ca un spațiu fluid: livingul cu loc de luat masa (33,00 mp) se deschide către terasa de 21,30 mp, extinzând experiența de locuire în aer liber. Bucătăria generoasă (21,00 mp) permite atât gătitul zilnic, cât și organizarea de mese în familie, în timp ce dormitorul de la parter (14,61 mp) oferă flexibilitate — cameră de oaspeți, birou sau dormitor pentru seniori. Spațiul tehnic (5,25 mp) și baia (5,17 mp) asigură funcționalitatea de zi cu zi, iar holul (13,02 mp) conectează clar toate zonele.
La etaj, intimitatea familiei este prioritară: trei dormitoare bine proporționate, dintre care matrimonialul (16,00 mp) dispune de baie proprie (4,01 mp) și dressing dedicat (9,50 mp). Celelalte două dormitoare (16,63 mp și 14,70 mp) beneficiază de dressing comun (9,63 mp) și acces facil la baia de pe nivel. Holul (17,32 mp) distribuie elegant circulațiile, iar balconul de 24,10 mp devine o veritabilă belvedere, unind vizual volumetria superioară și oferind o zonă de relaxare la exterior.
Materialele selecționate — tencuială albă, accente gri închis și piatră decorativă — pun în valoare liniile simple și drepte, în timp ce ferestrele numeroase aduc lumină naturală în profunzimea planului. Acoperișul tip șarpantă asigură protecție și durabilitate, fiind o soluție tehnică echilibrată pentru climatul local.
Date cheie: amprentă 123,29 mp; suprafață desfășurată 291,98 mp (din care terase/balcoane 45,40 mp); suprafață utilă 185,00 mp; dimensiuni maxime 12,80 × 11,05 m. Proiectul optimizează funcționalitatea, luminozitatea și integrarea în context, oferind o locuință actuală, eficientă și plăcută de locuit.
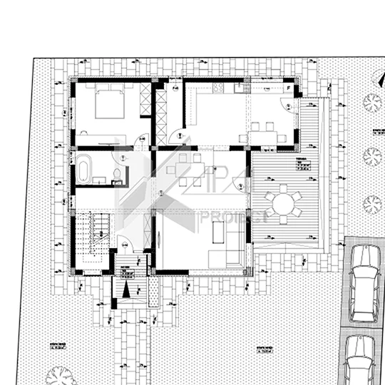
Parter
Hol acces: 13,02 mp – zonă de tranziție cu depozitare integrată.
Living + Dining: 33,00 mp – spațiu deschis către terasă, ideal pentru socializare.
Bucătărie: 21,00 mp – generos dimensionată, posibilitate de insulă/peninsulă.
Dormitor/Birou: 14,61 mp – flexibil, pentru oaspeți sau lucru de acasă.
Baie: 5,17 mp – proximitate optimă față de zona de zi.
Spațiu tehnic: 5,25 mp – centrale/echipamente, acces facil.
Terasa: 21,30 mp – extensie naturală a livingului, pentru dining în aer liber.
Etaj 1
Hol: 17,32 mp – distribuție clară către toate camerele.
Dormitor matrimonial: 16,00 mp cu baie en-suite 4,01 mp și dressing 9,50 mp.
Dormitor 2: 16,63 mp – lumină bună, acces la dressing comun.
Dormitor 3: 14,70 mp – ideal ca dormitor copil/teen.
Dressing comun: 9,63 mp – deservind Dormitor 2 și 3.
Baie etaj: 5,17 mp – poziție centrală pentru acces facil.
Balcon: 24,10 mp – belvedere, unește percepția asupra volumului superior.












