Locuința propusă este o casă modernă cu regim de înălțime Parter + Etaj, concepută ca locuință individuală ce integrează la parter un birou de profesiuni liberale, oferind o relație echilibrată între viața privată și activitatea profesională. Organizarea spațiilor permite funcționarea independentă a zonei de birou față de locuință, păstrând în același timp coerența volumetrică și arhitecturală a întregului imobil.
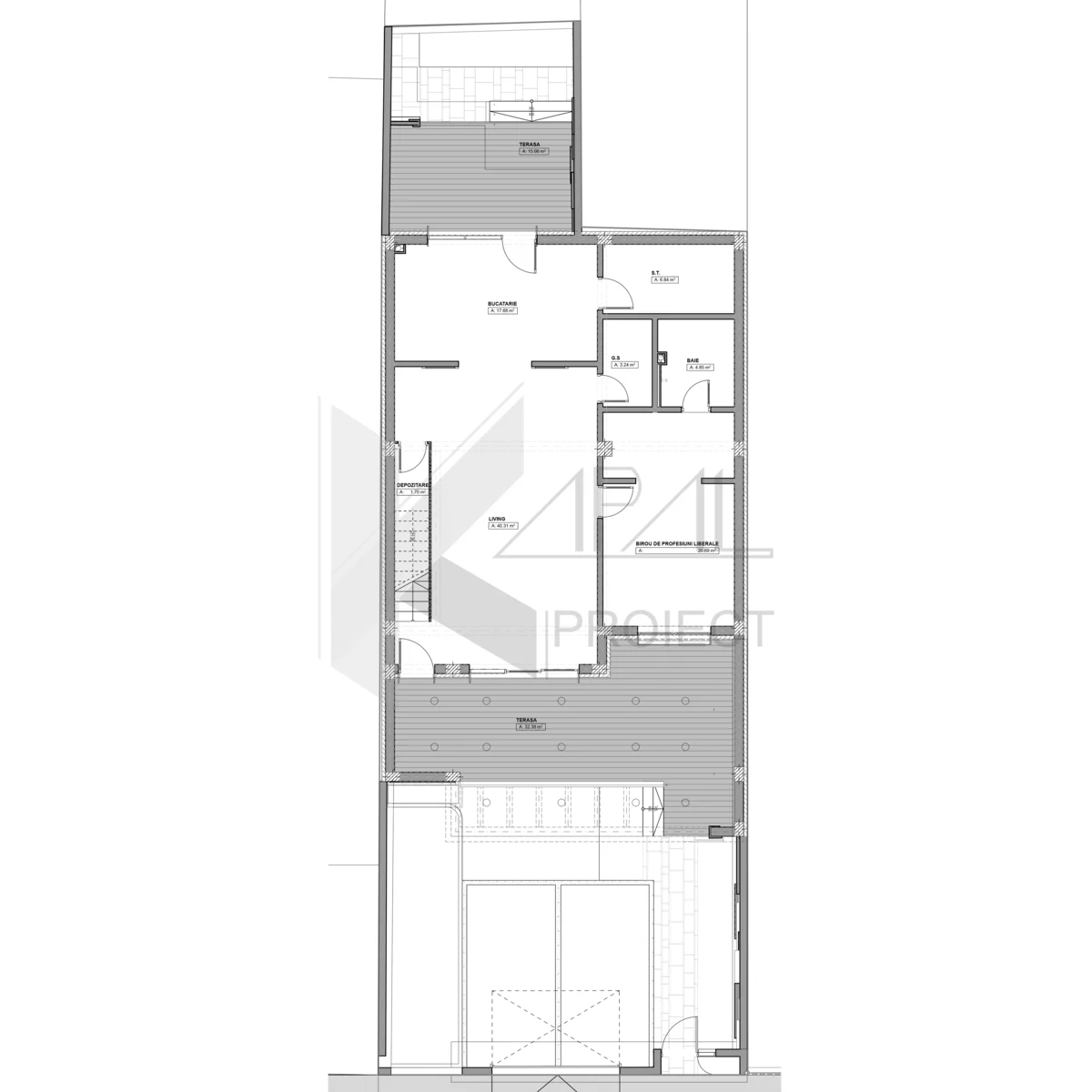
La nivelul parterului, zona de locuire este organizată în jurul unui living generos cu deschidere amplă către terasele exterioare, ceea ce creează o legătură fluidă între interior și spațiul exterior destinat relaxării și activităților sociale. Bucătăria este poziționată funcțional în raport cu zona de zi, iar spațiul tehnic și zonele de depozitare contribuie la o bună organizare a locuinței. Biroul de profesiuni liberale este amplasat către stradă și beneficiază de baie proprie, permițând desfășurarea activităților profesionale fără a perturba zona familială, oferind totodată o imagine reprezentativă pentru activitatea desfășurată.
Etajul este dedicat zonei de noapte și asigură confortul unei familii numeroase. Compartimentarea include două dormitoare deservite de o baie comună și un dressing generos, precum și un dormitor matrimonial cu baie proprie, toate spațiile având acces către balcoane ample ce oferă deschideri vizuale și lumină naturală abundentă. Holul etajului asigură o circulație eficientă între încăperi și contribuie la organizarea clară a nivelului.
Din punct de vedere arhitectural, clădirea este definită de două plane orizontale puternice care marchează parterul și etajul, ieșite în consolă pentru a crea streșini adânci ce protejează spațiile vitrate și terasele. Tavanele exterioare finisate cu lamele de lemn și iluminarea discretă prin spoturi încastrate creează o atmosferă caldă și elegantă pe timpul serii. Fațadele combină tencuiala albă cu zone de beton aparent texturat și placaje verticale din lemn, în timp ce muchiile în nuanțe închise conturează precis silueta volumului. Suprafețele vitrate mari ale parterului leagă zona de zi de terasa acoperită, iar balconul continuu al etajului, cu parapet din sticlă securizată texturată, oferă protecție vizuală și contribuie la dinamica fațadei.
Rezultatul este o casă-birou modernă și reprezentativă, primitoare pentru viața de familie și în același timp potrivită pentru activități profesionale. Suprafața generoasă a spațiilor și relația cu exteriorul fac clădirea potrivită pentru o familie activă, care apreciază atât confortul zilnic, cât și organizarea întâlnirilor sociale. Tâmplăria în nuanță gri antracit și balustradele din sticlă securizată completează expresia contemporană a clădirii.
Construcția are o lungime de 16,65 m și o lățime de 10,00 m, o amprentă la sol de 118,03 mp și o suprafață desfășurată totală de 306,81 mp, din care 77,28 mp reprezintă suprafața balcoanelor. Suprafața utilă totală este de 182,03 mp, iar acoperirea este realizată cu terasă necirculabilă, soluție care completează aspectul modern și compact al ansamblului.












