Proiectul K091 propune o casă modernă, P+1E, gândită ca refugiu confortabil pentru vacanțe sau ca locuință permanentă cu amprentă redusă și costuri de exploatare optimizate. Volumetria clară, acoperișul în două ape cu jgheab ascuns și terasele/balcoanele dispuse pe trei laturi oferă o imagine contemporană, dar prietenoasă cu contextul natural.
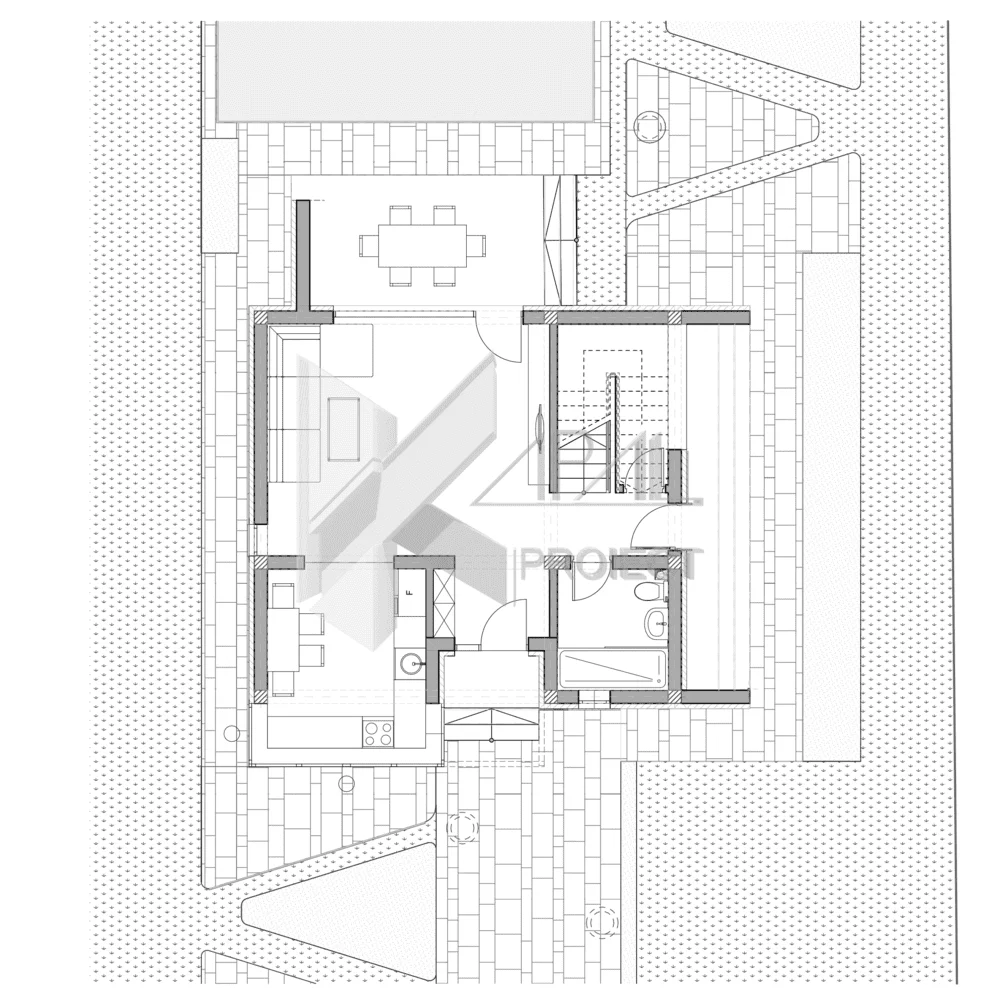
La parter, zona de zi este amplă și luminoasă, cu living conectat la terasa din spate și bucătărie bine proporționată pentru uz zilnic sau seri cu prietenii. Nodul vertical este eficient integrat și include spațiu tehnic sub scară, maximizând funcționalitatea fără a consuma suprafață utilă. Dubla accesibilitate (dinspre stradă și curtea laterală) crește flexibilitatea în utilizare și organizarea curții.
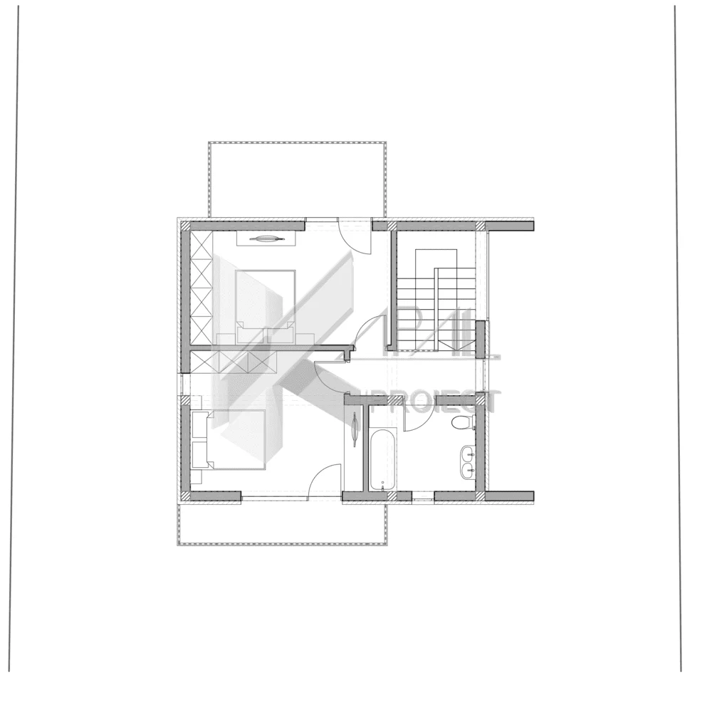
La etaj, zona de noapte include două dormitoare luminoase, fiecare beneficiind de balcon propriu, un hol concentrat și o baie generoasă. Suprafețele vitrate și orientarea calculată aduc iluminare naturală și ventilație transversală, esențiale pentru confort pe timp de vară.
Materialele propuse — tencuială decorativă albă și placaj tip Trespa, culoare mahon — asigură integrarea elegantă în natură și o expresie vizuală caldă. Învelitoarea din tablă fălțuită completează imaginea contemporană și oferă durabilitate în timp.
Prin amprenta compactă (77,65 mp), 92,22 mp utili și 156,38 mp suprafață desfășurată (din care 15,24 mp terase), K091 reușește un echilibru excelent între confort, eficiență și costuri de întreținere, fiind o soluție inspirată pentru terenuri mici sau ca locuință de vacanță într-un cadru natural.
Parter – Zonă de zi
Hol – 3.49 mp
Living – 23.54 mp
Bucătărie – 10.20 mp
Baie – 4.83 mp
Nod vertical de circulație
Spațiu tehnic sub scară
Terasă
Etaj 1 – Zonă de noapte
Hol – 4.14 mp
Nod vertical de circulație
Baie – 6.56 mp
Dormitor cu balcon
Dormitor cu balcon












