Acest proiect propune o locuință modernă P+1E, concepută pentru familii care își doresc confort și funcționalitate într-o amprentă redusă. Volumul compact, vitrajele ample și orientarea cardinală atent aleasă asigură spații luminoase pe tot parcursul zilei. La exterior, fațadele îmbină tencuiala decorativă albă cu placaje Trespa gri și maro, conferind un aspect contemporan și durabil. În spatele casei, o terasă generoasă găzduiește o mică bucătărie de vară, extinzând zona de zi în aer liber pentru mese, relaxare sau socializare.
Organizarea pe nivele separă clar funcțiunile: zona de zi la parter pentru viața cotidiană și zona de noapte la etaj pentru intimitate și odihnă. Circulațiile sunt compacte, cu depozitare sub scară, iar accesul către exterior este facil, conectând interiorul cu terasa din spate. Dimensiunile generale ale construcției – 9,40 m lungime și 6,85 m lățime – și amprenta de 64,26 mp permit integrarea ușoară pe loturi urbane sau periurbane, menținând în același timp spații utile optim dimensionate (92,24 mp utili). Acoperișul tip terasă cu șarpantă ascunsă, finisat cu învelitoare din tablă, completează expresia modernă și simplifică mentenanța.
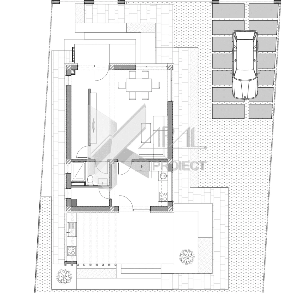
Parter
Living + loc de luat masa – 28,50 mp: spațiu deschis, luminat natural, relație directă cu terasa din spate.
Bucătărie – 9,69 mp: separată, ergonomică; ușor de deservit zona de dining și terasa.
Depozitare sub scară – 2,50 mp: ideală pentru echipamente, menaj, sezonier.
Baie – 3,38 mp: accesibilă pentru oaspeți și uz zilnic.
Cameră tehnică – 2,88 mp: centralizată pentru echipamentele instalațiilor.
Terasă: amplă, la spate, amenajată cu mică bucătărie de vară pentru gătit outdoor și social.
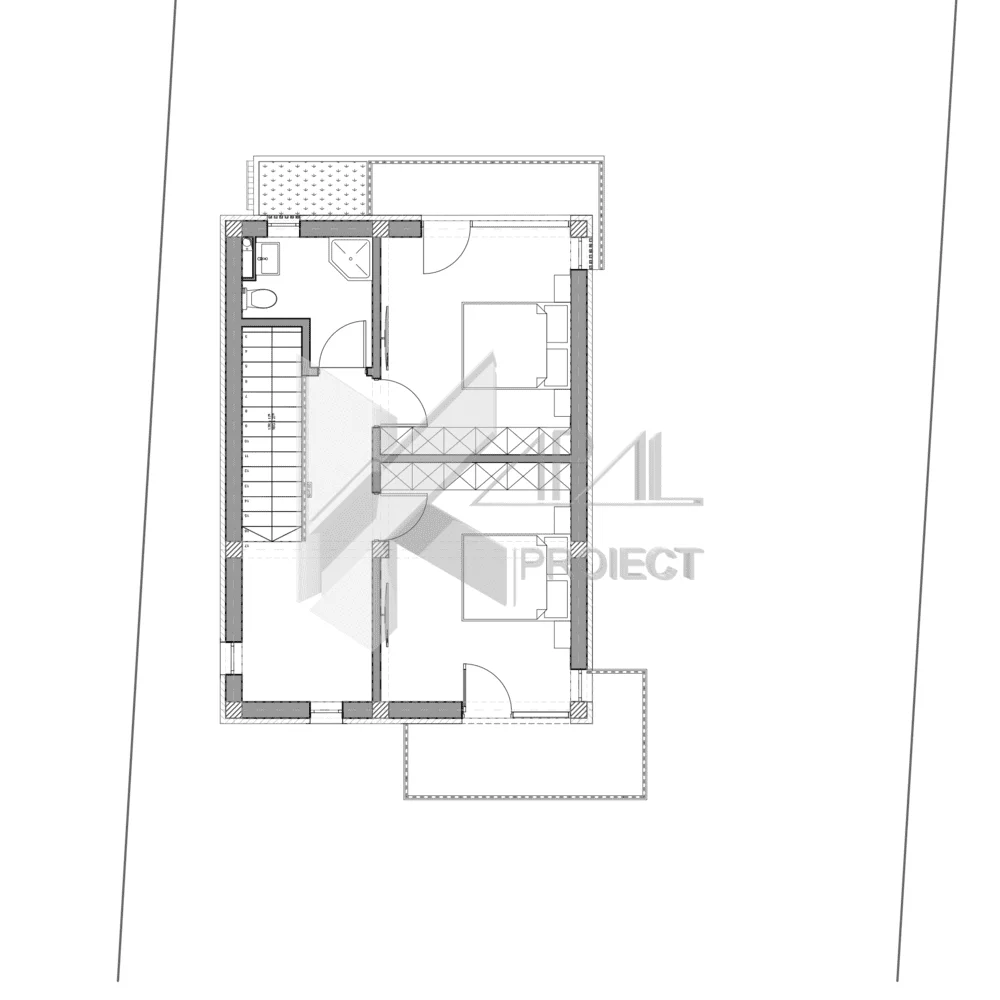
Etaj 1
Hol – 10,86 mp: distribuție eficientă către camere și baie.
Dormitor 1 – 14,70 mp: spațiu pentru pat matrimonial, dressing; acces la balcon.
Dormitor 2 – 14,65 mp: dimensiuni similare, ideal pentru copii/ birou; acces la balcon.
Baie – 4,94 mp: deservire comună, posibilitate cadă/duș walk-in.
Două balcoane: pentru ventilare naturală, lumină și momente de relaxare.












