Proiectul propune o locuință clasică cu volumetrie echilibrată și detalii arhitecturale elegante, concepută pentru familii care își doresc spațiu, funcționalitate și o imagine atemporală. Regimul S+P+1E+M eficientizează suprafața utilă de 496,36 mp, oferind zone de zi ample, un birou pentru profesii liberale la parter și un nivel de intimitate ridicat prin cele 7 camere distribuite pe etaj și mansardă.
Fațada este marcată de două coloane centrale, cornișe și ancadramente clasice, însoțite de balcoane generoase și o terasă circulabilă la mansardă. Materialele propuse — tencuială fină albă, soclu din piatră bej, tâmplărie gri antracit și balustrade din fier forjat — consolidează caracterul clasic și rezistența în timp.
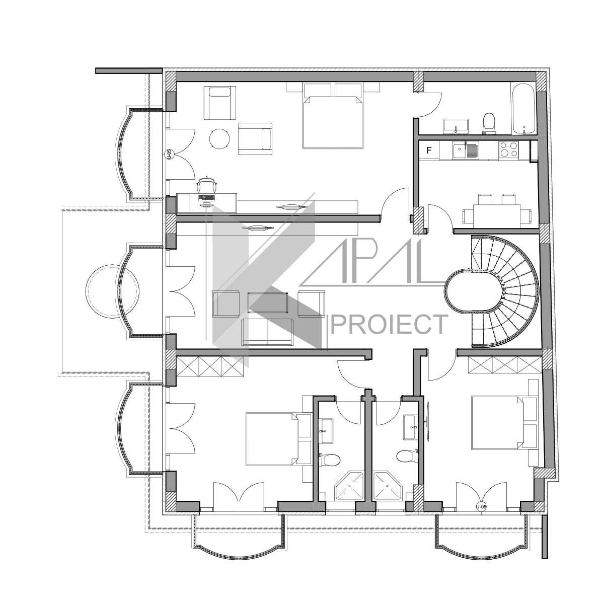
Planul de la parter privilegiază zona de zi: un living de 67,26 mp cu deschideri mari către exterior, o bucătărie de 31,76 mp și depozitare dedicată. Biroul de 16,31 mp permite desfășurarea activităților de profesii liberale fără a perturba intimitatea locuinței. Nivelurile superioare adăpostesc dormitoare luminoase, fiecare cu băi proprii sau dedicate și balcoane pentru un plus de confort zilnic. La mansardă, un al doilea living și o chicinetă transformă spațiul într-o zonă de recreere sau apartament de oaspeți, completată de terasa de 29,38 mp.
Structura pe șarpantă asigură o imagine clasică coerentă, iar golurile mari de ferestre aduc lumină naturală din abundență pe tot parcursul zilei. K117 este, astfel, o casă clasică cu funcțiuni contemporane, pregătită să răspundă nevoilor unei familii active.














