Proiectul propune modificarea și optimizarea unui front comercial la parter, cu o volumetrie joasă (un singur nivel) și un limbaj clasic elegant. Fațada este ritmată de goluri în arc în plin cintru, iar intrarea principală este accentuată de o arcadă mai adâncă care formează un mic portic de protecție la ploaie și soare. Elementele clasice – chei de boltă decorative peste arcade, bosaje pe muchii și console sub cornișă – sunt tratate curat, fără decorațiuni excesive.
Paleta materială îmbină tencuiala crem deschis cu un soclu din piatră naturală și tâmplărie maro, rezultând o prestanță discretă și o durabilitate vizuală care favorizează identitatea comercială pe termen lung. Vitrinele mari și înalte aduc lumină naturală în profunzime, reduc nevoia de iluminat diurn și pun în valoare produsele, ceea ce sporește traficul pietonal și vizibilitatea brandurilor.
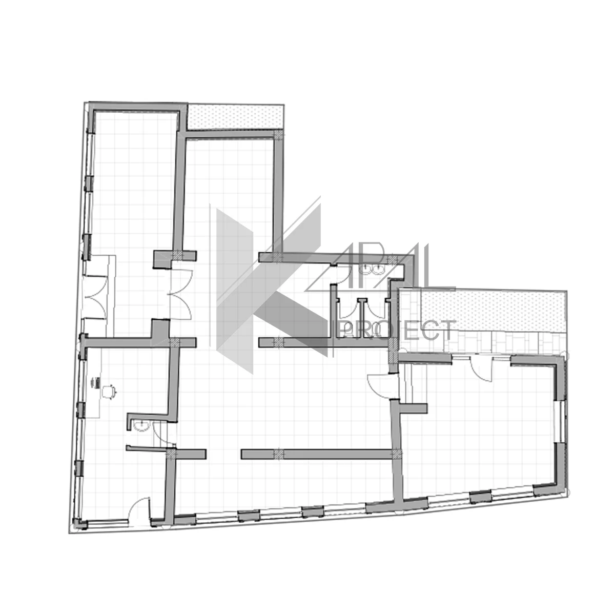
Compartimentarea la interior este clară și eficientă, cu 7 spații comerciale de dimensiuni diferite și grupuri sanitare dedicate, asigurând confortul clienților și al personalului. Planul asigură circuite intuitive, posibilități ușoare de mobilare/expunere, spații pentru signalistică la fațadă și acces logistic simplificat. Acoperișul tip șarpantă oferă un răspuns durabil în timp și se integrează armonios cu estetica clasică.











