Această locuință clasică monumentală, proiectată cu regim de înălțime D+P+1E+M, reprezintă un exemplu de arhitectură rezidențială premium, unde eleganța clasică este îmbinată armonios cu funcționalitatea contemporană.
Proiectul este conceput sub forma a trei corpuri distincte:corpul principal al locuinței (D+P+1E+M), corpul bucătăriei de vară (P + terasă circulabilă),corpul piscinei și al garajului (P + terasă circulabilă).
Compoziția arhitecturală este pusă în valoare prin utilizarea generoasă a profilelor ornamentale, bosajelor, ancadramentelor elegante ale ferestrelor, soclurilor și cornișelor clasice. Tâmplăriile atent alese completează imaginea sobră și rafinată a ansamblului.
Locuința este destinată unei familii numeroase, beneficiind de un număr mare de camere, spații ample de zi, zone de relaxare și facilități de tip wellness și entertainment: piscină interioară, saună, cinematograf, sală de sport, bucătărie de vară și terase generoase.
Demisol
Nod vertical de circulație și lift
Hol principal – 26.16 mp
Adăpost de apărare civilă – 13.36 mp
Centrală termică – 17.01 mp
Dressing serviciu – 31.04 mp
Spălătorie – 21.70 mp
Spațiu de depozitare – 5.17 mp
Hol secundar – 1.43 mp
Grup sanitar (W.C.) – 3.37 mp
Scară de serviciu
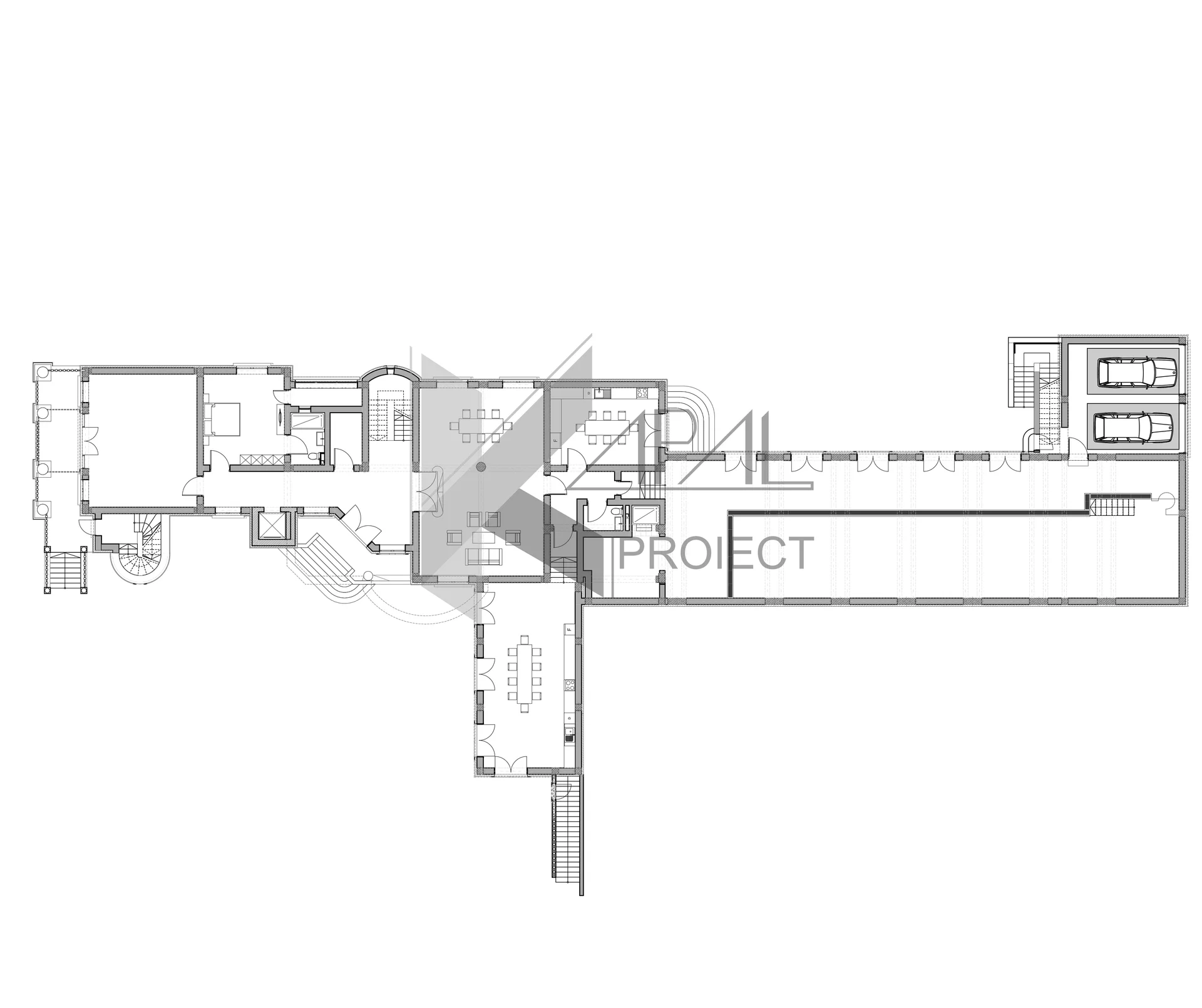
Parter
Hol + casa scării – 33.39 mp
Lift
Garderobă – 5.14 mp
Baie – 5.21 mp
Dormitor – 21.78 mp
Birou – 43.48 mp
Living principal – 66.37 mp
Bucătărie – 24.78 mp
Bucătărie de vară – 50.50 mp
Terasă – 22.16 mp
Sală piscină interioară – 95.39 mp
Saună – 13.03 mp
Duș – 2.47 mp
Bazin piscină – 114.76 mp
Garaj – 38.55 mp
Scări interioare și exterioare, spații de depozitare și circulații
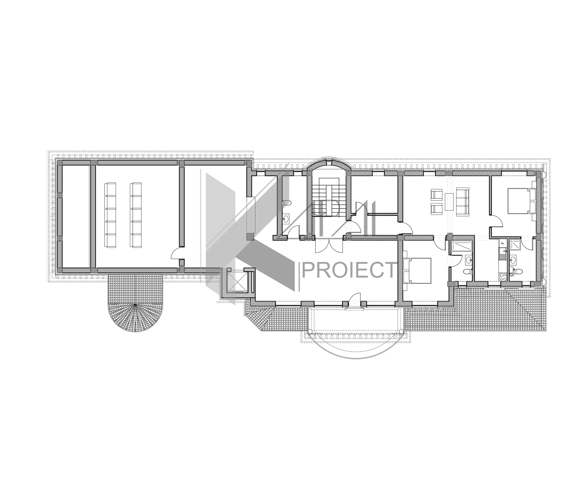
Etaj 1
Dormitor matrimonial – 44.00 mp
Dressing – 28.02 mp
Baie – 16.16 mp
Balcon – 7.14 mp
Dormitor – 20.32 mp
Baie – 12.63 mp
Dressing – 10.97 mp
Balcon închis – 7.46 mp
Dormitor – 38.35 mp
Dressing – 29.15 mp
Baie – 19.49 mp
Terasă principală – 232.72 mp
Terasă tehnică – 89.71 mp
Două scări exterioare
Mansardă
Living – 25.95 mp
Dormitor cu baie – 13.54 mp + 5.49 mp
Bucătărie – 6.90 mp
Dormitor – 13.94 mp
Baie – 4.35 mp
Sală de sport – 44.39 mp + terasă 15.72 mp
Bar – 7.54 mp
Cameră hobby – 31.90 mp
Cinematograf – 43.04 mp
Holuri, lift și casa scării













