Această locuință este concepută pentru o familie numeroasă, având un caracter impunător și un limbaj arhitectural clasic, cu regim de înălțime Demisol + Parter + 4 Etaje. Volumetria echilibrată și proporțiile ample susțin imaginea monumentală a clădirii, completată de integrarea unei piscine exterioare și a unor spații generoase de relaxare.
Organizarea funcțională separă clar zonele de agrement și tehnice la demisol, zona de zi la parter și zonele de dormit la nivelurile superioare. Circulațiile verticale sunt rezolvate prin scări și lift, asigurând confort și accesibilitate pe toate nivelurile.
Arhitectura clasică este evidențiată prin utilizarea bosajelor la colțuri, ancadramentelor la ferestre, cornișelor profilate și pilastrilor, completate de balustrade din fier forjat. Finisajele în nuanțe deschise de alb și bej conferă eleganță și coerență ansamblului.
Clădirea are o suprafață desfășurată totală de 1.298,79 mp, o suprafață utilă de 907,35 mp și este acoperită cu terasă necirculabilă.
Demisol
Garaj cu acces facil și spații de manevră
Spațiu tehnic + grup sanitar
Zonă de joacă/recreere interioară
Hol și distribuție verticală (scară + lift)
SPA: vestiar, grup sanitar, saună
Cameră suplimentară cu grup sanitar și depozitare (ideală pentru hobby, fitness sau cameră personal)
Scară de acces dedicată către parter
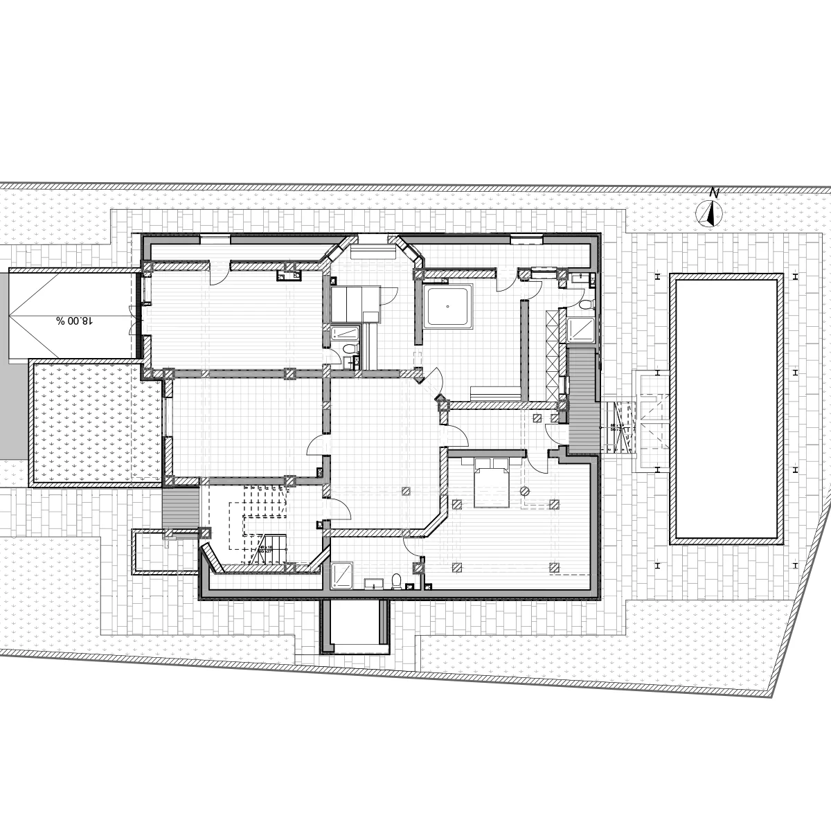
Parter
Două scări (una către demisol, una către etaje)
Lift
Hol de recepție / distribuție
Grup sanitar pentru zona de zi
Living cu balcon (legătură vizuală și de ventilare)
Bucătărie cu loc de luat masa (posibilă deschidere controlată spre living)
Dormitor matrimonial cu dressing + baie proprie
Dormitor secundar cu baie proprie
Piscină exterioară la nivelul solului, amplasată pentru intimitate și însorire optimă
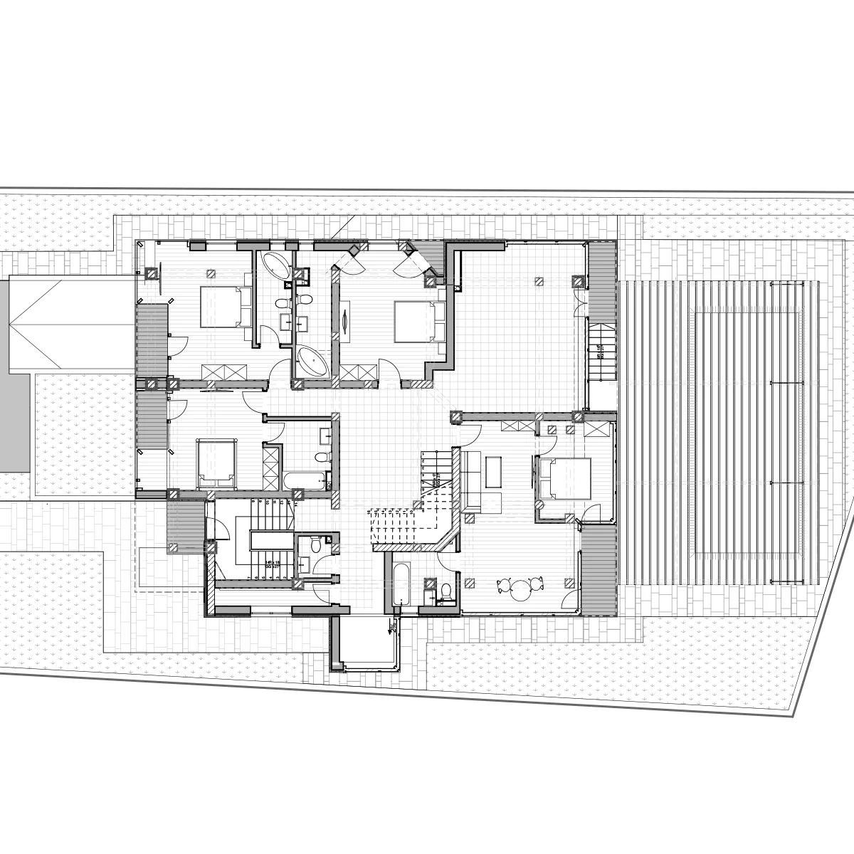
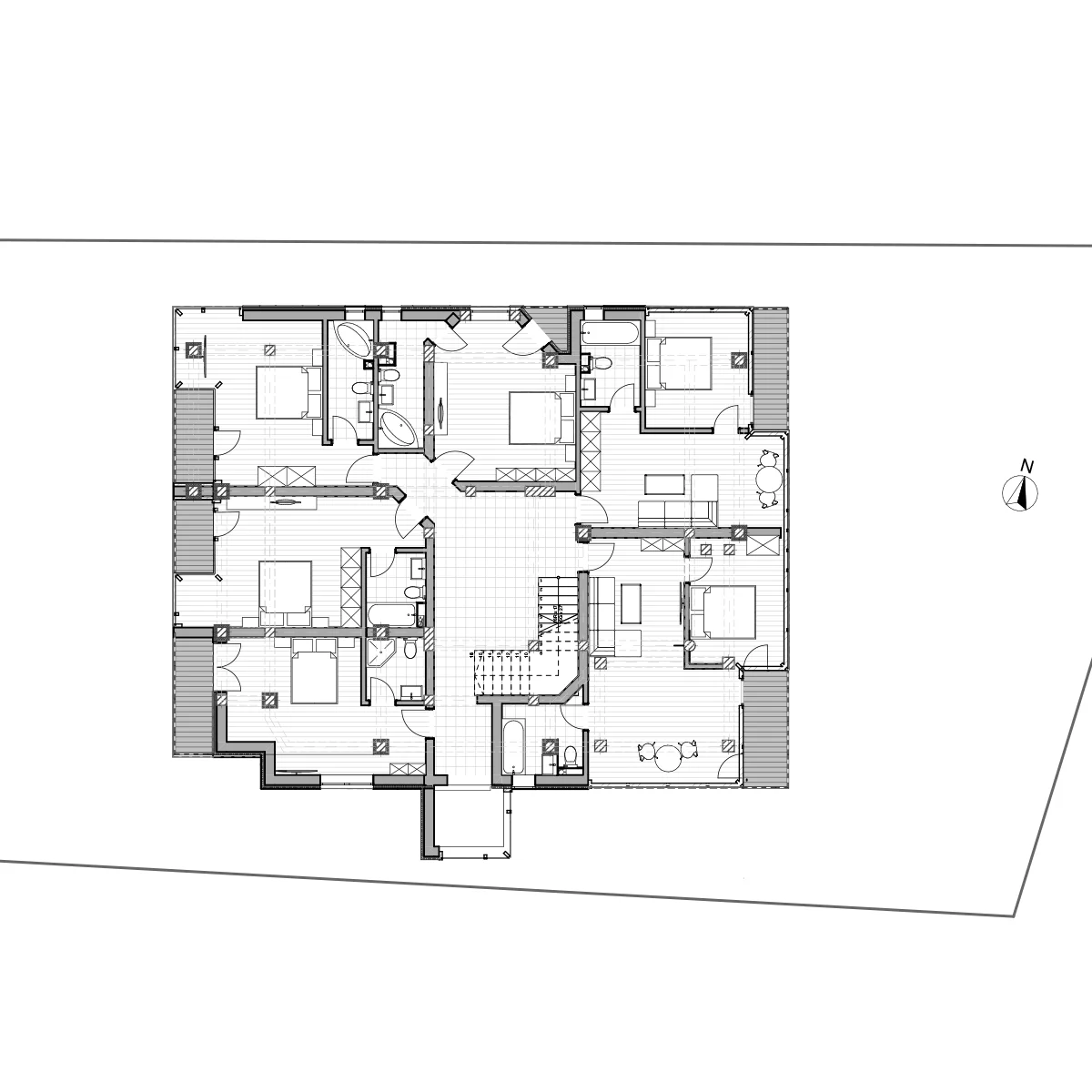
Etaj 1-4
Scară + lift
Hol central, cu depozitări integrate
2 dormitoare deservite de o baie comună (eficiență pe circulații)
4 dormitoare cu băi proprii (maxim de intimitate)
2 balcoane/nivel (ventilare, lumină, spațiu de exterior)













