Subsol
Nod vertical de circulație (scară)
Două spații tehnice: 21,84 mp și 11,11 mp
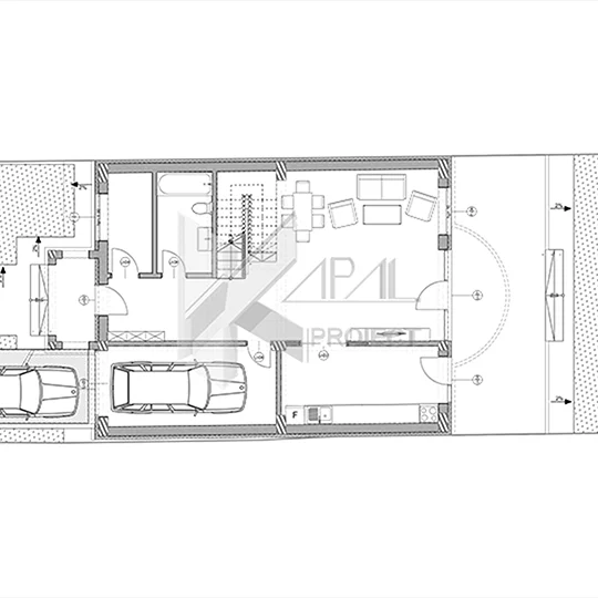
Parter
Hol – 6,48 mp
Garaj – 14,15 mp (acces facil către casă)
Spațiu tehnic – 4,41 mp
Baie – 5,52 mp
Nod vertical de circulație (scară)
Living – 32,28 mp (deschidere către exterior)
Bucătărie – 12,58 mp
Terasă – 26,54 mp
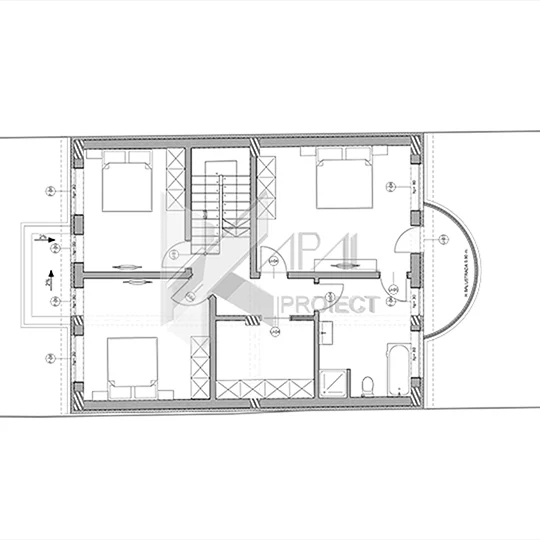
Etaj 1
Scară de acces și Hol – 7,19 mp
Dressing – 7,71 mp
Două dormitoare – 12,94 mp și 15,39 mp
Dormitor matrimonial – 20,01 mp cu baie – 11,09 mp
Balcon – 5,71 mp













