Proiectul propune o casă clasică P+1E cu o compoziție echilibrată și o prezență elegantă la stradă. Fațada principală este marcată de coloane canelate și cornișe decorative, în timp ce balustradele din sticlă ale balcoanelor conferă o notă contemporană și lasă luminii naturale să evidențieze texturile. Cromatica alb–crem pune în valoare volumele, iar iluminatul arhitectural completează atmosfera rafinată.
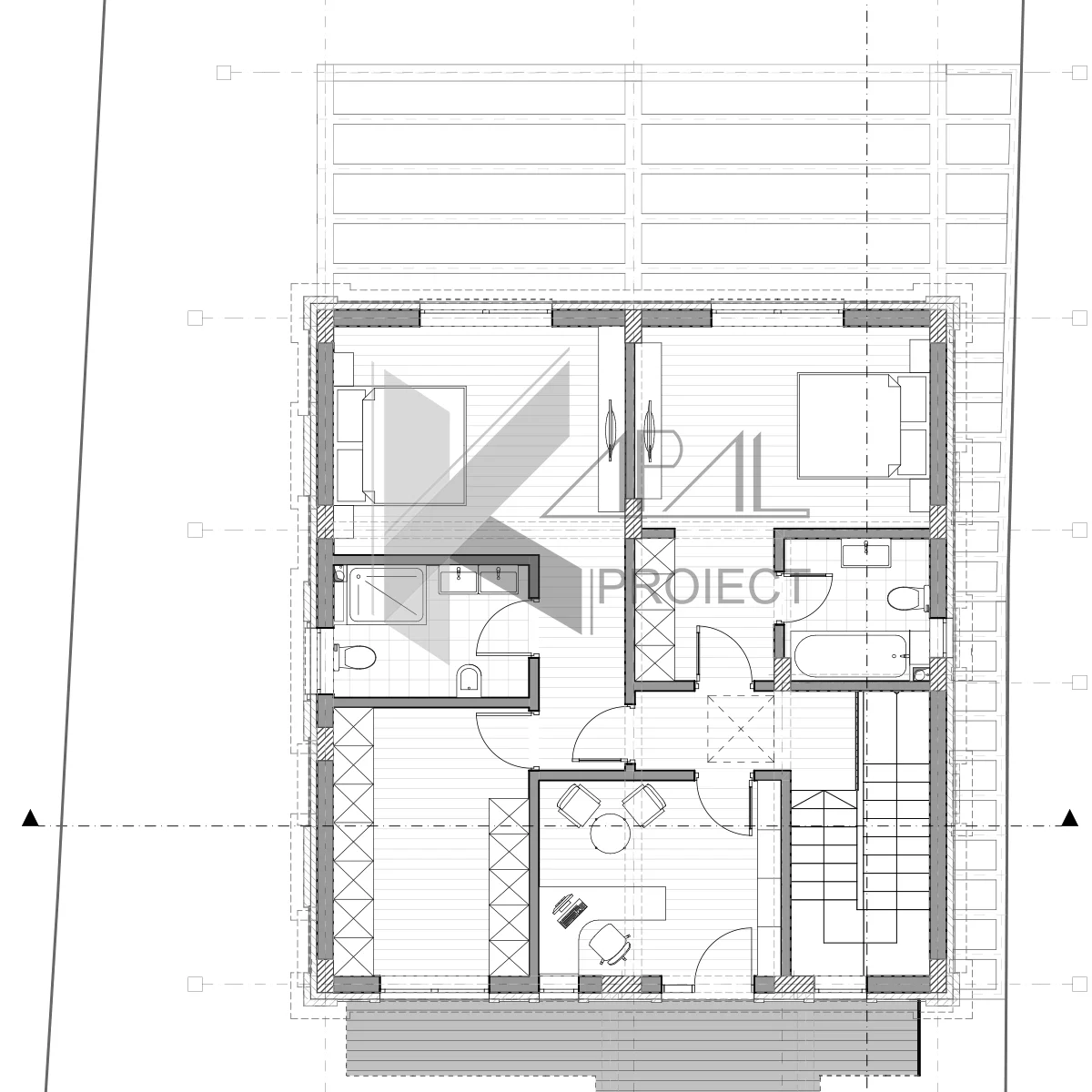
Planul este gândit pentru viața de familie și socializare: zona de zi se deschide către terasa amplă cu pergolă, ideală pentru cine în aer liber. Etajul este dedicat odihnei, cu un dormitor matrimonial generos, dressing separat și baie proprie, plus un al doilea dormitor cu baie proprie și un birou luminos cu balcon. Tâmplăria PVC maro asigură confort și întreținere ușoară, iar acoperișul în patru ape cu învelitoare din țiglă maro protejează elegant ansamblul pe termen lung.












