Acest proiect este o casă modernă P+1E concepută pentru o familie cu doi copii, în care fiecare metru pătrat este valorificat printr-o compartimentare clară, logică și eficientă. Volumetria retrasă la etaj marchează în mod elegant accesul principal și generează un balcon generos la nivelul superior, în timp ce către curtea din spate am propus două terase: una acoperită la parter pentru zona de zi și o terasă la etaj, deservind dormitoarele.
Compoziția materială îmbină piatra naturală în tonuri de gri, tencuiala decorativă albă și lemnul stratificat utilizat la tratarea teraselor, creând o imagine contemporană, primitoare și durabilă. Suprafețele vitrate ample și orientarea cardinală optimă oferă un aport generos de lumină naturală pe tot parcursul zilei, reducând nevoia de iluminat artificial și accentuând legătura interior–exterior.
Cu o amprentă la sol de 122,42 mp și suprafață desfășurată de 247,00 mp (din care 34,03 mp balcoane/terase) și 151,03 mp utili, K111 oferă un echilibru ideal între funcționalitate și estetică. Garajul integrat și camera tehnică simplifică fluxurile zilnice, iar spațiile bine proporționate – de la zona de zi fluidă la zona de noapte bine separată – sprijină un stil de viață modern, activ și confortabil. Configurația este acoperită de un acoperiș tip șarpantă cu învelitoare de țiglă, soluție clasică, fiabilă și estetică.
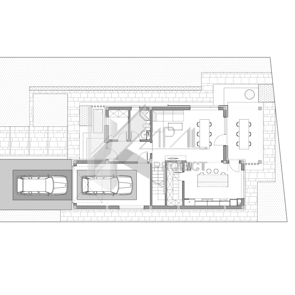
Parter
Vestibul – 5,92 mp: zonă tampon, cu spațiu pentru depozitare încălțăminte/îmbrăcăminte.
Living + loc de luat masa – 26,15 mp: spațiu deschis, conectat vizual cu terasa acoperită, ideal pentru familie și socializare.
Bucătărie – 17,25 mp: separată, ergonomică; acces direct la depozitare 4,71 mp pentru organizare eficientă.
Grup sanitar – 4,07 mp: deservire parter, poziționat convenabil.
Garaj – 22,01 mp: acces direct în casă, protecție pentru automobil și depozitări sezoniere.
Cameră tehnică – 4,13 mp: echipamente, mentenanță facilă.
Terasă acoperită – 13,90 mp: prelungirea zonei de zi către grădină, utilizabilă în mare parte a anului.
Nod vertical de circulație: scară protejată, poziționată central pentru fluxuri eficiente.
Etaj 1
Hol – 6,43 mp: distribuție clară către toate camerele.
Dormitor 1 – 14,13 mp & Dormitor 2 – 13,30 mp: ambele cu ieșire pe terasa din spate, luminoase și ușor de mobilat.
Dormitor matrimonial – 13,28 mp: retragere intimă, în proximitatea dressingului 6,56 mp.
Baie – 7,00 mp: complet echipată, amplasată eficient față de toate dormitoarele.
Balcon + terasă la etaj: spații exterioare suplimentare pentru relaxare și aerisire naturală.
Nod vertical de circulație: continuitate funcțională între etaje.












